Well-presented two-bedroom retirement apartment with secure facilities and guest suite in central Marlow.
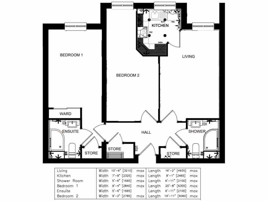
- Two bedrooms, two shower rooms including ensuite to Bedroom 1
- First-floor apartment with lift access to all floors
- Fully fitted kitchen with integrated appliances
- Ground-source communal heating included in service charge
- Lodge manager five days a week; 24-hour Careline alarm
- Guest Suite available; access to Churchill Living guest suites nationwide
- Service charge £6,045.61pa; ground rent £894.54pa (expensive)
- Very long lease (reported c. 976–999 years); crime rate above average
A comfortable two-bedroom, two-bathroom first-floor retirement apartment in Peel Lodge, a purpose-built development moments from Marlow town centre. The apartment is presented in excellent decorative order, with a fully fitted kitchen, a generous living/dining room and an ensuite to the principal bedroom. Lift access serves all floors and two handy hallway storage cupboards add useful space.
The development is designed for independent retirees: a lodge manager is available five days a week, a 24-hour Careline alarm provides round-the-clock monitoring, and a Guest Suite is available for visitors (plus access to Guest Suites at other Churchill Living sites). Heating is efficient and communal, supplied via a ground-source system included within the service charge.
Practical points to note: the property is leasehold with a very long lease (reports vary but show c. 976–999 years remaining), an annual service charge of £6,045.61 and a ground rent of £894.54 per year. Service charges cover many running costs including heating, insurance and maintenance, but the overall charges and above-average council tax should be factored into running budgets. Crime in the area is reported as above average.
This apartment suits downsizers seeking low-maintenance, secure living close to Marlow’s shops, riverside amenities and good transport links. The communal facilities and active programme of social events make it easy to settle in, while the efficient heating and lift access provide practical day-to-day comfort.
1 bedroom retirement property for sale in Peel Lodge, Marlow, SL7 — £499,950 • 1 bed • 1 bath • 569 ft²
1 bedroom retirement property for sale in Peel Lodge, Marlow, SL7 — £449,950 • 1 bed • 1 bath • 467 ft²
1 bedroom flat for sale in Dean Street, Marlow, SL7 — £325,000 • 1 bed • 1 bath • 555 ft²
1 bedroom retirement property for sale in Retirement apartment - close to Marlow High Street, SL7 — £275,000 • 1 bed • 1 bath • 521 ft²
1 bedroom apartment for sale in Peel Lodge, Dean Street, Marlow, Buckinghamshire, SL7 — £450,000 • 1 bed • 1 bath • 519 ft²
1 bedroom retirement property for sale in 1 Bed Apartment, Peel Lodge, Marlow, SL7 — £349,965 • 1 bed • 1 bath


























































































































