IP1 5LE - 3 bedroom semidetached house for sale in Wexford Road, Ipsw…

View on Property Piper

3 bedroom semi-detached house for sale in Wexford Road, Ipswich, IP1

Summary - 8 WEXFORD ROAD IPSWICH IP1 5LE

3 bed 1 bath Semi-Detached

Chain-free semi with parking and garden — renovation potential in northwest Ipswich.
Chain free three-bedroom semi-detached house, freehold
Off-street driveway parking and pleasant rear garden with outbuilding
Conservatory, kitchen/breakfast room and ground-floor shower room
Dated kitchen and interior; property needs renovation and updating
Gas central heating; modern wall-mounted boiler present
Sitting-room gas fire condemned and disconnected (requires attention)
Area has above-average crime and high local deprivation — factor for buyers
Good broadband and mobile signal; no flood risk
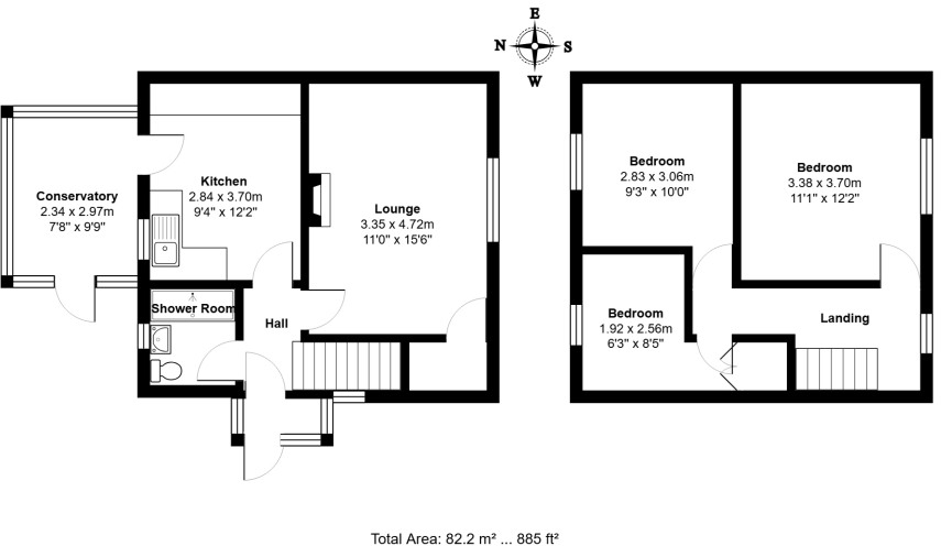
This chain-free, three-bedroom semi-detached house on Wexford Road offers a straightforward entry into Ipswich property ownership. Set on a decent plot with off-street parking, a conservatory and a manageable rear garden, the home provides practical family accommodation across roughly 885 sq ft and is freehold.

The layout is traditional: sitting room, kitchen/breakfast room, conservatory and ground-floor shower room, with three bedrooms upstairs. The property has gas central heating, mostly double glazing and a modern wall-mounted boiler. Broadband and mobile signals are good, and there is no recorded flood risk.

The house requires updating: the kitchen and some internal finishes are dated and the property is described as needing renovation. The gas fire in the sitting room is condemned and disconnected. The area shows signs of economic hardship and above-average crime statistics — important factors for buyers to consider alongside the low council tax band.

For first-time buyers or buyers seeking a renovation project, this home represents value: reasonable size, no onward chain and scope to modernise to personal taste. Early inspection will best reveal the potential and any specific works required.

Property Details

Brochure Descriptions

Image Descriptions

Floorplan Description

Rooms

Textual Property Features

Target Audience

AI Tags

Detected Visual Features

Nearby Schools

Nearest Bars And Restaurants

,,,,}

Nearest General Shops

,,}

Nearest Grocery shops

,,}

Nearest Supermarkets

,,}

Nearest Religious buildings

,,}

Nearest Medical buildings

,,,}

Nearest Leisure Facilities

,,,,}

Nearest Tourist attractions

,,}

Nearest Train stations

,,,,}

Nearest Bus stations and stops

,,,,}

Nearest Hotels

,,}

Tags

Local Market Stats

Similar Properties

Meta

High Res Images

Compatible Images

Low res Images

Thumbnails

Raw Images

High Res Floorplan Images

Compatible Floorplan Images

Low res Floorplan Images

FloorplanImages Thumbnail

Raw Floorplan Images