Four-bedroom modern family home with garage, garden, and easy access to Stanwick and Rushden Lakes..
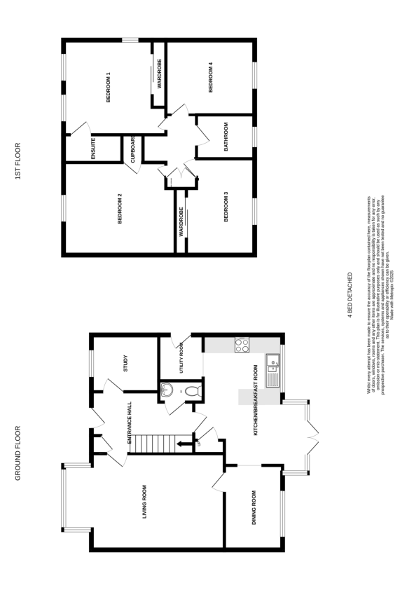
- Four double bedrooms including ensuite to the master
- Spacious kitchen/breakfast/dining room with integral appliances
- Enclosed rear garden with lawn and paved patio
- Tandem driveway and single garage (limited parking width)
- EPC B, mains gas boiler and radiators
- Council Tax Band F — expensive to run
- Very low local crime, excellent mobile, fast broadband
- Modest plot size; records note detached and semi‑detached
Set in desirable Thrapston, this four-bedroom family home offers roomy living across multiple floors and a wide kitchen/breakfast/dining area that stretches the full width of the house. A bright living room with a large bay window, ground-floor study, utility and handy storage cupboards give practical space for family life. The master bedroom includes built-in wardrobes and an ensuite, with three further double bedrooms and a family bathroom upstairs.
Outside, you’ll find an enclosed rear garden with lawn and paved patio, plus tandem off-road parking and a single garage. The property has mains gas central heating, a B EPC rating, very low local crime and fast broadband — useful for homeworking and family connectivity.
The home sits close to local amenities, primary schools rated Good, Stanwick Lakes and Rushden Lakes leisure and shopping, with straightforward access to the A14 and A45. Note the plot is modest in size and parking is tandem length only; the vendor lists the house as detached while some records may indicate semi‑detached.
Practical buyers will appreciate the turnkey presentation and efficient running costs (EPC B), while families will value proximity to good primary schools. Be aware of an expensive Council Tax (Band F) and that outdoor space is compact, which may limit extensive landscaping or side access.
4 bedroom detached house for sale in Blackbird Close, Thrapston, NN14 — £390,000 • 4 bed • 2 bath • 1133 ft²
4 bedroom detached house for sale in Wagtail Way, Thrapston, NN14 — £445,000 • 4 bed • 2 bath • 1510 ft²
4 bedroom detached house for sale in Ash Court, Thrapston, NN14 — £390,000 • 4 bed • 2 bath • 1068 ft²
4 bedroom detached house for sale in Oakleas Rise, Thrapston, NN14 — £375,000 • 4 bed • 2 bath • 1290 ft²
4 bedroom detached house for sale in Kingfisher Road, Thrapston, Kettering, NN14 — £440,000 • 4 bed • 2 bath • 992 ft²
4 bedroom detached house for sale in Pintail Lane, Thrapston, NN14 — £445,000 • 4 bed • 2 bath • 1330 ft²














































































