Affordable three-bed home with garage and great transport links.
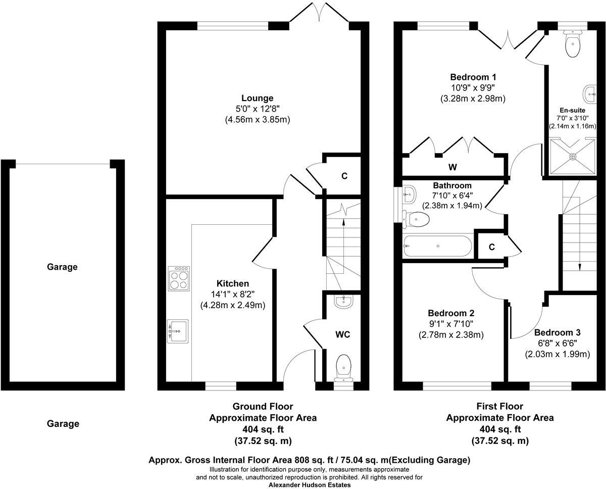
End-terrace three-bedroom home with en-suite and ground-floor WC
Modern fitted kitchen; bright rear lounge with practical layout
Private garden, detached garage and allocated parking space
Freehold; built c.2003–2006 with double glazing and gas central heating
Approx. 948 sq ft — average internal size on a small plot
Located near Longbenton and Four Lane Ends metro stations
Area classified as hampered aspiration; local deprivation noted
Mixed school performance locally; one nearby primary rated Inadequate
This well-maintained three-bedroom end terrace offers practical, contemporary living across three storeys, suited to first-time buyers or young families seeking easy access to transport and local amenities. The layout delivers a modern fitted kitchen, ground-floor WC and a bright lounge to the rear — straightforward living with usable rooms and sensible flow.
Upstairs there are two double bedrooms (one with en-suite) plus a versatile third bedroom suitable for a nursery or home office. At about 948 sq ft the home is average-sized and efficient in footprint, with a private garden, detached garage and an allocated parking space completing the plot.
Built in the early 2000s and with double glazing and gas central heating, the property is largely move-in ready but sits on a small plot in a neighbourhood classed as hampered aspiration. Local area indicators show some deprivation and mixed school Ofsted outcomes; nearby Longbenton and Four Lane Ends metro stations, A1/A19 links, good broadband and mobile signal are strong practical benefits.
Overall this freehold terrace balances modern convenience, parking and outdoor space at an affordable price point. Buyers should note the local social and economic indicators when weighing long-term resale or investment potential.
3 bedroom detached house for sale in Kilburn Gardens, North Shields, NE29 — £220,000 • 3 bed • 3 bath • 633 ft²
3 bedroom detached house for sale in Wyedale Way, Walker, NE6 — £195,000 • 3 bed • 2 bath • 1002 ft²
3 bedroom terraced house for sale in West Farm Wynd, Longbenton, Newcastle Upon Tyne, NE12 — £160,000 • 3 bed • 1 bath • 870 ft²
3 bedroom terraced house for sale in Hotspur Road, Sunholme Estate, Wallsend, NE28 — £180,000 • 3 bed • 1 bath • 635 ft²
3 bedroom end of terrace house for sale in Brookland Drive, Newcastle Upon Tyne, NE12 — £165,000 • 3 bed • 1 bath
3 bedroom semi-detached house for sale in Ullswater Drive, Killingworth, NE12 — £230,000 • 3 bed • 2 bath • 743 ft²


























































