Ready, well-presented three-bed family home with large covered extension and off-street parking.
Externally insulated and rendered for improved efficiency
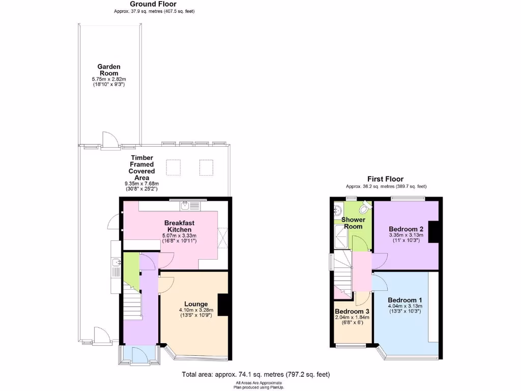
Large breakfast kitchen leading to timber-framed covered extension
Off-street printed-concrete driveway parking
Low-maintenance rear garden with decked garden room and store
One shower room only — single bathroom for three bedrooms
Timber-framed extension may need future maintenance or inspection
Small overall property size (approx. 797 sq ft)
Close to i54, M54/M6 and good transport links
Set on Southbourne Road in Fordhouses, this three-bedroom semi-detached home blends ready-to-live-in presentation with practical extras. Externally insulated and newly rendered, the house offers good kerb appeal and lower running-noise and heating losses. The generous breakfast kitchen and a large timber-framed covered extension create flexible family living with direct garden access.
Bedrooms one and two are comfortable doubles; the third works well as a single bedroom, nursery or home office. A modern shower room serves the house, but there is only a single bathroom for three bedrooms. Interior finishes are contemporary and well presented, with wood-style flooring in principal rooms and modern fittings throughout.
Outside, a printed-concrete driveway provides off-street parking and a low-maintenance rear garden includes a decked garden room, koi pond and a timber store. The covered timber-framed extension is a standout feature for dining, play or home working, but its multi-use construction may require inspection for long-term weatherproofing or maintenance needs.
Location is a practical advantage: well-placed for the M54/M6 and close to i54 employment hub, with fast broadband and excellent mobile signal. Local schools rated Outstanding/Good nearby make this suitable for families and commuters. Note the area’s higher deprivation indicators and average crime levels; the property’s tenure is not specified and should be confirmed before purchase.
3 bedroom semi-detached house for sale in Southbourne Road, Fordhouses, Wolverhampton, WV10 6ET, WV10 — £275,000 • 3 bed • 2 bath • 1388 ft²
4 bedroom semi-detached house for sale in Southbourne Road, Fordhouses, Wolverhampton, WV10 6ET, WV10 — £285,000 • 4 bed • 2 bath • 1200 ft²
3 bedroom semi-detached house for sale in Ashfield Road, Fordhouses, Wolverhampton, West Midlands, WV10 — £300,000 • 3 bed • 1 bath • 732 ft²
3 bedroom semi-detached house for sale in Milldale Crescent, Fordhouses, Wolverhampton, WV10 6LR, WV10 — £240,000 • 3 bed • 1 bath • 1014 ft²
3 bedroom semi-detached house for sale in Winchester Road, Fordhouses, Wolverhampton, West Midlands, WV10 — £290,000 • 3 bed • 1 bath • 1109 ft²
3 bedroom semi-detached house for sale in Mill Green, Fordhouses, Wolverhampton, West Midlands, WV10 — £240,000 • 3 bed • 1 bath • 711 ft²






















































