Chain-free two-bedroom bungalow with garage and loft rooms, ripe for renovation.
No onward chain — immediate completion possible
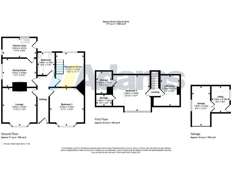
Set on a sought-after street in Runcorn, this detached two-bedroom bungalow offers practical, single-level living with useful loft rooms for additional space. The property is chain-free, comes with off-road parking and a garage, and sits on a small, low-maintenance paved garden — attractive for buyers seeking an easy exterior upkeep.
The home requires renovation and modernisation, giving buyers a clear opportunity to improve energy performance and personalise finishes. The house is solid brick (likely uninsulated) but benefits from double glazing installed post-2002 and gas central heating to radiators. Loft rooms provide flexible space but may need formalisation depending on intended use.
Location is a strength: local primary schools have good Ofsted ratings, and public transport, shops and a Co-op are nearby. Council Tax Band C and freehold tenure keep ongoing costs straightforward. Note the wider area is classified as deprived, which may affect long-term resale in parts of the neighbourhood.
This bungalow suits downsizers or buyers wanting a manageable property with scope to add value. Early viewing is advised to assess renovation scope and to appreciate the layout, garage and off-street parking.
2 bedroom detached bungalow for sale in Malpas Road, Runcorn, WA7 — £290,000 • 2 bed • 1 bath • 660 ft²
1 bedroom terraced bungalow for sale in Quadrant Close, Runcorn, WA7 — £90,000 • 1 bed • 1 bath • 513 ft²
2 bedroom semi-detached bungalow for sale in Abbotts Close, Higher Runcorn, WA7 — £150,000 • 2 bed • 1 bath • 539 ft²
2 bedroom semi-detached bungalow for sale in Starling Close, Runcorn, WA7 — £160,000 • 2 bed • 1 bath • 524 ft²
2 bedroom detached bungalow for sale in Stonehills Lane, Runcorn, WA7 — £210,000 • 2 bed • 1 bath • 655 ft²
3 bedroom detached bungalow for sale in Copeland Grove, Beechwood, WA7 — £250,000 • 3 bed • 1 bath • 1113 ft²










































































