Higher-floor home with panoramic Manchester views and allocated indoor parking.
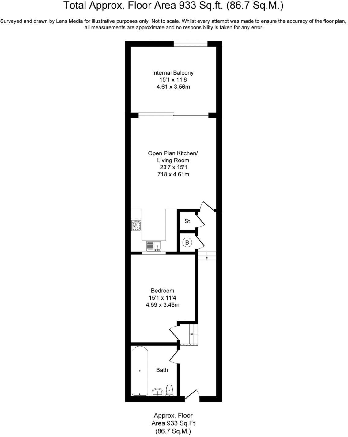
Chain-free one-bedroom apartment in Grade II listed Cottonworks
Set within the converted Cottonworks Grade II listed mill, this chain-free one-bedroom apartment is presented ready to move into. Positioned on a higher floor with a covered, decked balcony, it delivers panoramic views towards Manchester and Peel Tower and brings generous internal space for a city-centre apartment.
The open-plan lounge-kitchen-diner is fitted with integrated appliances and a rustic breakfast bar, with sliding doors opening onto the sheltered balcony—an all-year spot for the view. The mezzanine double bedroom sits above the living space and benefits from built-in wardrobes; two hallway storage cupboards add practical space. An allocated indoor parking space sits on the same level as the apartment for easy access.
Practical points to note: the building’s Grade II listed status preserves original features but will restrict external and some internal alterations and may complicate consent for changes. Heating is via electric storage heaters, which can be more expensive than gas. Tenure is unknown and should be confirmed, and there is no private garden. Overall, the apartment suits a buyer seeking a distinctive, low-maintenance city home with strong character and excellent views.
2 bedroom apartment for sale in Apartment 514 Holden Mill, Blackburn Road, Bolton, BL1 — £123,500 • 2 bed • 1 bath • 808 ft²
2 bedroom flat for sale in Holden Mill, Blackburn Road, Bolton, BL1 — £140,000 • 2 bed • 2 bath • 674 ft²
1 bedroom apartment for sale in Holden Mill, Bolton, BL1 — £110,000 • 1 bed • 1 bath
1 bedroom apartment for sale in Holden Mill, Blackburn Road, Bolton, BL1 — £90,000 • 1 bed • 1 bath • 566 ft²
1 bedroom apartment for sale in Holden Mill, Blackburn Road, Bolton, BL1 — £100,000 • 1 bed • 1 bath • 562 ft²
2 bedroom apartment for sale in Holden Mill, Blackburn Road, Bolton, BL1 — £170,000 • 2 bed • 2 bath • 1015 ft²


























































































