EH12 0DQ - 2 bedroom apartment for sale in Meadowfield Road North, Edi…

View on Property Piper

2 bedroom apartment for sale in Meadowfield Road North, Edinburgh, EH12 0DQ , EH12

Summary - 195 Meadowfield Road North, Edinburgh, EH12 0DQ EH12 0DQ

2 bed 2 bath Apartment

**Standout Features:**
- Newly built 2-bedroom apartment in West Craigs Green, Edinburgh
- Contemporary design with modern brick facade and balconies
- Integrated kitchen appliances including fridge freezer, washer dryer, and electric oven
- Stylish sanitaryware and designer ceramic tiles in bathrooms
- Eco-friendly features: solar panels, electric car charging points
- Access to communal green spaces and parks nearby
- Excellent transport links to Edinburgh city centre (5 miles away)

**Potential Downsides:**
- Area classified as very deprived, which may concern some buyers
- Current local amenities may be limited but are anticipated to grow

Experience modern living at this stunning 2-bedroom apartment in West Craigs Green, a thriving community in Edinburgh. With its sleek contemporary design, this home provides a stylish yet practical living space featuring a fully equipped kitchen, two well-sized bathrooms, and eco-friendly enhancements that ensure energy efficiency. The scenic surroundings include green spaces and future local amenities, like a new primary school and health centre, which promises an evolving community.

Located just five miles from the city centre, you can easily access various transport options, making this an ideal choice for first-time buyers or those looking to invest in a growing neighborhood. While the area’s current classification may raise some concerns, the anticipated developments offer great potential for future value appreciation. Don’t miss out on this opportunity—schedule your viewing today!

Property Details

Brochure Descriptions

Image Descriptions

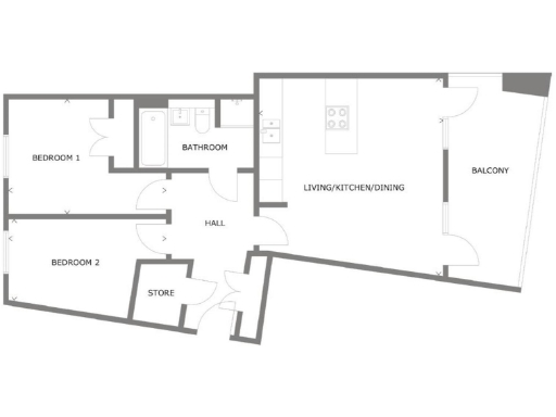
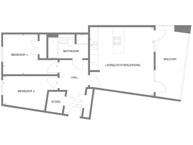
Floorplan Description

Rooms

Textual Property Features

Detected Visual Features

Nearest Bars And Restaurants

,,,,}

Nearest General Shops

,,}

Nearest Grocery shops

,,}

Nearest Supermarkets

,,}

Nearest Religious buildings

,,}

Nearest Medical buildings

,,,}

Nearest Airports

}

Nearest Leisure Facilities

,,,,}

Nearest Tourist attractions

,,}

Nearest Train stations

,,,,}

Nearest Bus stations and stops

,,,,}

Nearest Hotels

,,}

Tags

Local Market Stats

Similar Properties

Meta

High Res Images

Compatible Images

Low res Images

Thumbnails

Raw Images

High Res Floorplan Images

Compatible Floorplan Images

Low res Floorplan Images

FloorplanImages Thumbnail

Raw Floorplan Images