Renovated period home with large gardens and multiple parking spaces.
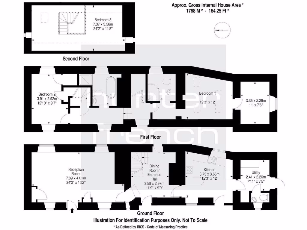
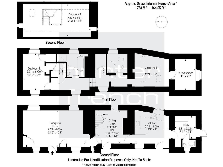
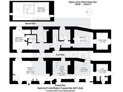
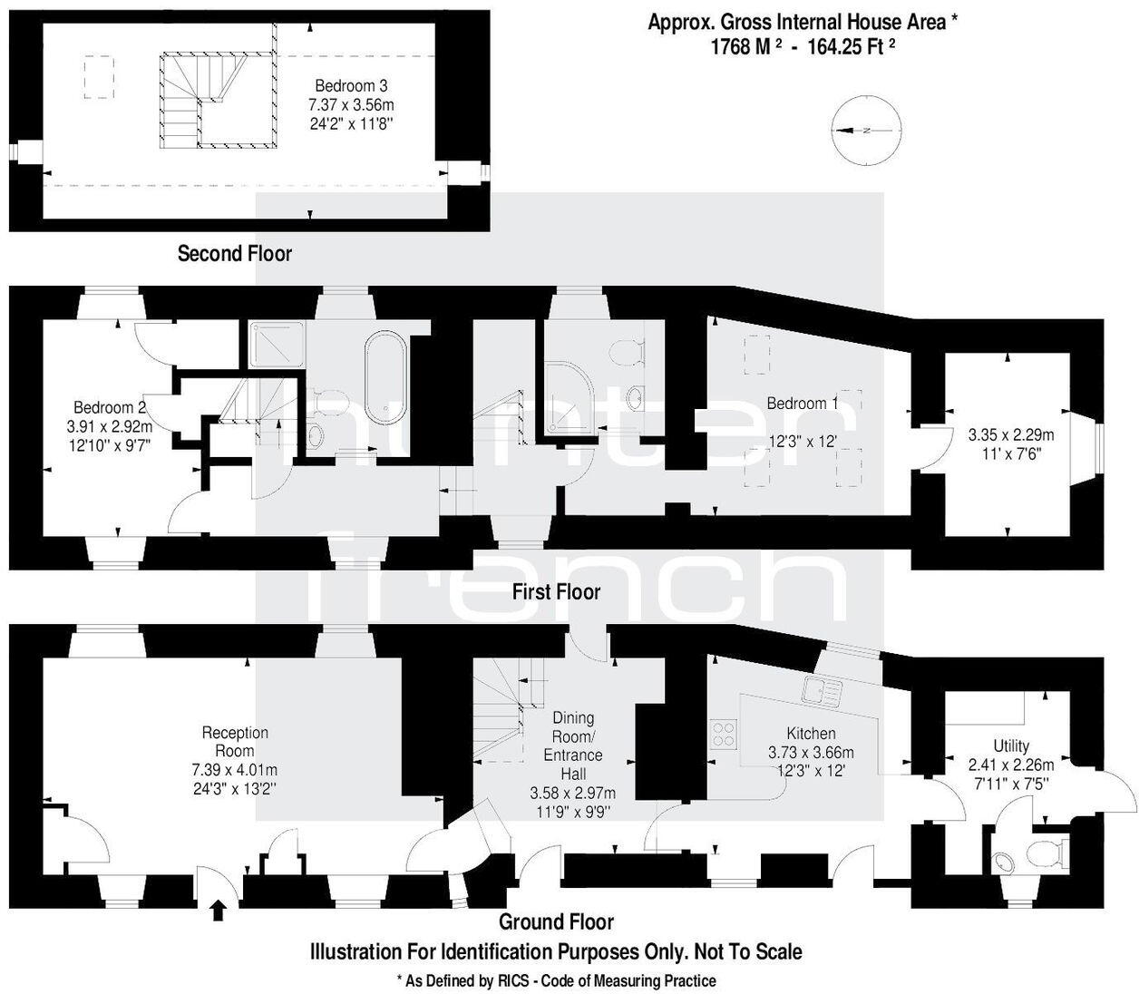
- Grade II listed Cotswold stone cottage, c.1730
- Fully renovated: new bathrooms, staircases, doors, flooring
- Underfloor heating, improved insulation and double glazing
- Converted attic provides flexible third-bedroom or office
- Large plot with two garden areas and gated vehicle access
- Driveway parking for multiple vehicles and off-street front parking
- Listed status will complicate alterations and require consents
- Council tax above average; local crime levels higher than average
An enchanting Grade II listed Cotswold stone cottage, renovated for contemporary family life while retaining historic character. Dating from circa 1730, the house offers three bedrooms across three floors, exposed oak beams, an inglenook fireplace with wood-burning stove, and a converted attic that works well as a bedroom, office or studio.
The refurbishment is comprehensive: new bathrooms, staircases, doors and flooring, improved roof and floor insulation, double glazing and underfloor heating. Practical benefits include generous off-street parking and gated vehicular access to the large rear garden, plus easy walking distance to Corsham town centre and strong commuter links by road and rail.
Buyers should note the property’s listed status — necessary consents will be required for many works, which can add cost and delay. Council tax is above average and local crime levels are higher than typical for the area. The vendor is offering the house chain free and there is no flooding risk.
This home will suit a family wanting period charm combined with modern comforts, or a buyer seeking a characterful primary residence in easy reach of Bath, Bristol and the M4. The recent upgrades mean minimal immediate maintenance, though any future alterations must respect the listing requirements.
5 bedroom semi-detached house for sale in Pound Pill, Corsham, Wiltshire, SN13 — £850,000 • 5 bed • 3 bath • 2947 ft²
3 bedroom terraced house for sale in Westonbirt, Tetbury, Gloucestershire, GL8 — £575,000 • 3 bed • 2 bath • 1241 ft²
2 bedroom terraced house for sale in Pickwick, Corsham, SN13 0HZ, SN13 — £300,000 • 2 bed • 1 bath • 805 ft²
4 bedroom semi-detached house for sale in Hazelbury Hill, Box, SN13 — £695,000 • 4 bed • 1 bath • 1908 ft²
5 bedroom link detached house for sale in Bences Lane, Corsham, Wiltshire, SN13 — £1,350,000 • 5 bed • 3 bath • 3117 ft²
3 bedroom semi-detached house for sale in Wilcot, Pewsey, SN9 — £600,000 • 3 bed • 2 bath • 1186 ft²






















































































































