CF35 6RL - 3 bedroom end of terrace house for sale in Minffrwd Road, P…

View on Property Piper

3 bedroom end of terrace house for sale in Minffrwd Road, Pencoed, Bridgend, CF35

Summary - 5 MINFFRWD ROAD PENCOED BRIDGEND CF35 6RL

3 bed 2 bath End of Terrace

Spacious three-bedroom period home with garden, parking and modern finish — £375,000.
Three double bedrooms, generous sizes and privacy
Large private rear garden, set back from the road
Gated off-street parking for multiple vehicles
Fully renovated interior with modern kitchen and bathrooms
High ceilings and original Victorian features retained
Constructed before 1900; sandstone/limestone walls, no known insulation
Fast broadband; low local crime, average mobile signal
Area marked as very deprived — consider long-term resale dynamics
A renovated Victorian end-of-terrace on Minffrwd Road offering 1,248 sq ft of flexible living across two floors. High ceilings, original period details and recently fitted double glazing combine with a modern kitchen, utility and two bathrooms to give a practical family layout.

The large, private rear garden and gated off-street parking for multiple vehicles are real day-to-day strengths — excellent for families, home-workers or buyers who value outdoor space. Fast broadband and low local crime add to everyday convenience while the property sits on a peaceful town-fringe street.

Buyers should note the house was constructed before 1900 in sandstone/limestone with no known wall insulation (assumed) — upgrading cavity/solid wall insulation may be advisable. The surrounding area is marked as relatively deprived despite a professional local demographic and good transport links, so prospective purchasers should consider long-term resale factors alongside the house’s strong internal condition.

Sold freehold at £375,000, this freshly renovated period home suits families or first-time buyers seeking character mixed with modern comforts. Practical maintenance and insulation improvements would add value and energy-efficiency to an already spacious property.

Property Details

Brochure Descriptions

Image Descriptions

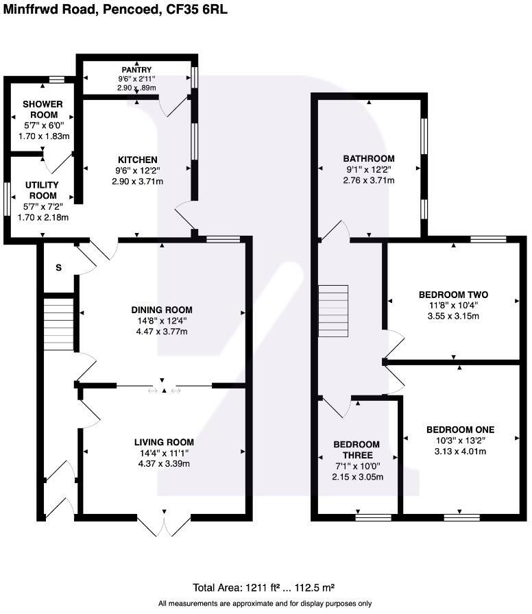
Floorplan Description

Rooms

Textual Property Features

Target Audience

AI Tags

Detected Visual Features

EPC Details

Nearest Bars And Restaurants

,,,,}

Nearest General Shops

,,}

Nearest Grocery shops

,,}

Nearest Supermarkets

,,}

Nearest Religious buildings

,,}

Nearest Medical buildings

,,,}

Nearest Airports

}

Nearest Leisure Facilities

,,,,}

Nearest Tourist attractions

,,}

Nearest Train stations

,,,,}

Nearest Bus stations and stops

,,,,}

Nearest Hotels

,,}

Tags

Local Market Stats

Similar Properties

Meta

High Res Images

Compatible Images

Low res Images

Thumbnails

Raw Images

High Res Floorplan Images

Compatible Floorplan Images

Low res Floorplan Images

FloorplanImages Thumbnail

Raw Floorplan Images