Affordable family home with scope to add value near schools and transport.
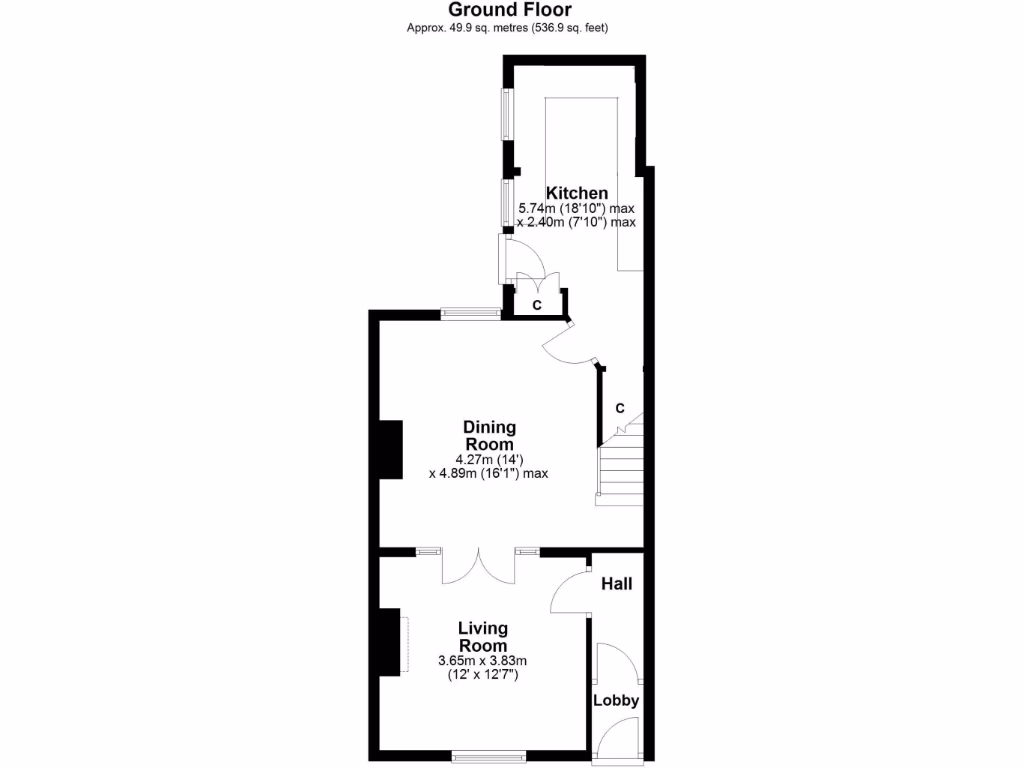
- Three bedrooms with two reception rooms, approx 97 sqm (1,044 sq ft)
- New roof fitted in 2023; UPVC double glazing throughout
- Gas central heating to most rooms; second bedroom has no fixed heating
- Solid brick walls with assumed no cavity insulation (improvement needed)
- Single family bathroom located at top of stairs; electric shower over bath
- Small rear yard and raised forecourt; on-street parking only
- Freehold, Council Tax Band A; EPC awaited (energy rating unknown)
- Good local schools, fast broadband and excellent mobile signal
A traditional three-bedroom Victorian terraced house offering spacious living over two floors and useful scope for updating. The property benefits from a recent new roof (2023), UPVC double glazing and gas central heating serving most rooms, delivering immediate warmth and lower running risk. With two reception rooms, an extended kitchen and three well-proportioned bedrooms, the layout suits first-time buyers or young families seeking affordable space close to local schools and transport links.
There are some practical drawbacks to note: the second bedroom currently has no fixed heating and the third bedroom is served by an electric heater, so full central heating coverage is incomplete. Walls are original solid brick with no known insulation, and the EPC is awaited—buyers should consider potential improvement costs for insulation and energy efficiency. The property has a single bathroom and only a small rear yard, and parking is on-street with dotted lines.
Set on Fell View in Crawcrook, the house is within easy reach of local shops, buses and primary and secondary schools rated Good to Outstanding, with Newcastle city centre about 7.5 miles away. Broadband speeds are fast and mobile signal is excellent, making the home suitable for modern working-from-home needs. Offered freehold with a modest Council Tax Band A, this property provides an affordable entry into a well-connected Tyne Valley community with clear scope to add value through targeted refurbishment.
3 bedroom end of terrace house for sale in Crawcrook Terrace, Crawcrook, Ryton, NE40 — £110,000 • 3 bed • 1 bath • 753 ft²
3 bedroom terraced house for sale in South View, Crawcrook, Ryton, Tyne and Wear, NE40 — £130,000 • 3 bed • 1 bath • 764 ft²
3 bedroom terraced house for sale in Moor View, Crawcrook, Ryton, ., NE40 — £120,000 • 3 bed • 1 bath
3 bedroom terraced house for sale in Holburn Terrace, Ryton, NE40 — £230,000 • 3 bed • 1 bath • 611 ft²
2 bedroom terraced house for sale in Edward Street, Crawcrook Ryton, Tyne and Wear, NE40 — £110,000 • 2 bed • 1 bath • 678 ft²
3 bedroom end of terrace house for sale in Ivy Cottages, Lead Road, Greenside, Ryton, Tyne and Wear, NE40 — £120,000 • 3 bed • 1 bath • 871 ft²


































































