**Standout Features:**
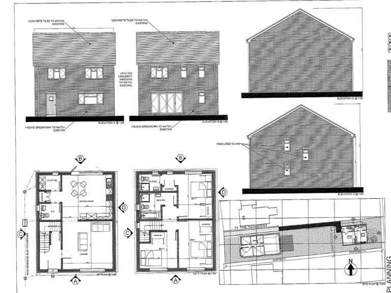
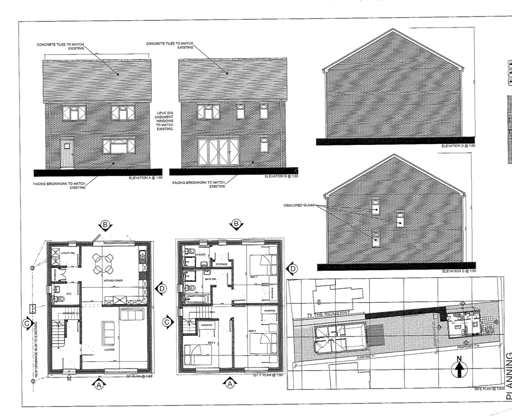
- Planning permission granted for a 3-bedroom detached home (application no BH2022/01757)
- Desirable location in Woodingdean, Brighton
- Close proximity to schools, local shops, bus routes, and the South Downs
- Freehold tenure offering full ownership
- Large plot size with garden potential
- Excellent mobile signal and fast broadband speeds
- Low crime rate in an affluent area
**Summary:**
Available now, a prime plot of land in the sought-after area of The Ridgway, Woodingdean, with planning permission to construct a spacious 3-bedroom detached home. This sizeable freehold plot is situated in a highly desirable neighborhood, perfect for families or investors looking to create their dream residence. With essential amenities including schools, convenient shops, and bus routes all within easy reach, your future home will offer both comfort and accessibility.
Embrace the opportunity for development in this charming urban setting, where the lush surroundings include easy access to the South Downs for outdoor enthusiasts. This property combines a serene atmosphere with urban convenience, ensuring you can enjoy the best of both worlds. While the garden is currently overgrown, it presents a canvas for renovation and landscaping, inviting you to envision how it could be transformed into your personal oasis. The area boasts low crime rates and is classified as affluent, making it an ideal place for families seeking a secure environment. Don’t miss out on this rare opportunity to build and personalize a home that meets your needs—secure your piece of land today!











