Move-in ready three bed near station with garden and parking.
Within minutes of Feltham High Street and mainline train station
Allocated off-street parking and secluded rear garden
Modern fitted kitchen with integrated appliances
Contemporary bathroom plus convenient downstairs WC
Two large double bedrooms; flexible ground-floor third room
Approx 851 sq ft — average overall size for the layout
Leasehold tenure — check lease length and service charges
Local crime rate above average; consider security needs
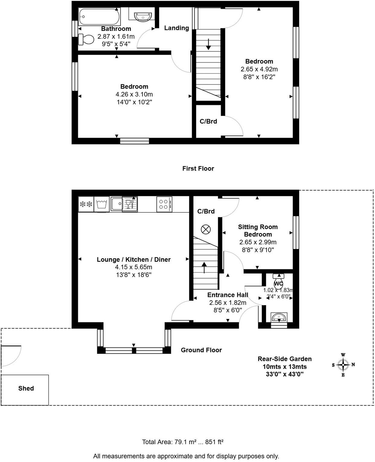
Bright, well-presented three-bedroom end-of-terrace within moments of Feltham High Street and the mainline station, ideal for commuters and families who value convenience. The house offers a modern fitted kitchen, contemporary bathroom, downstairs WC and a flexible ground floor that can serve as a sitting room or a third bedroom. A secluded garden and allocated off-street parking add practical outdoor and parking space.
Internally the property feels spacious for its overall footprint (about 851 sq ft) with two large double bedrooms and good natural light. The finish is modern throughout, with integrated kitchen appliances and a neutral décor that will suit a range of buyers. Broadband is fast and mobile signal is excellent — helpful for home working.
Important factual points: the property is leasehold and comes with only one bathroom, which may matter for larger families. The local crime rate is above average, although the wider area classification and local amenities indicate an established, culturally mixed neighbourhood with strong schools nearby, including an Outstanding-rated secondary. There is no onward chain, which supports a quicker sale process.
Overall this is a practical, ready-to-move-in home that suits buyers seeking transport links, local shops and schools. It offers good short-term rental or family potential, but buyers should note tenure and the single-bathroom layout when assessing suitability.
3 bedroom terraced house for sale in Ordnance Close, Feltham, Middlesex, TW13 — £495,000 • 3 bed • 2 bath • 800 ft²
2 bedroom terraced house for sale in Highfield Road, Feltham, TW13 — £450,000 • 2 bed • 1 bath • 791 ft²
3 bedroom end of terrace house for sale in Gladstone Avenue, Feltham, Middlesex, TW14 — £475,000 • 3 bed • 1 bath • 715 ft²
3 bedroom semi-detached house for sale in Westmacott Drive, Feltham, Middlesex, TW14 — £475,000 • 3 bed • 1 bath • 780 ft²
3 bedroom terraced house for sale in Northumberland Crescent, Feltham, Greater London, TW14 — £475,000 • 3 bed • 2 bath • 859 ft²
2 bedroom terraced house for sale in Cravan Avenue, Feltham, TW13 — £450,000 • 2 bed • 1 bath • 810 ft²














































