Bright one-bedroom flat — great commuter links and move-in ready.
12th-floor apartment with panoramic Croydon views
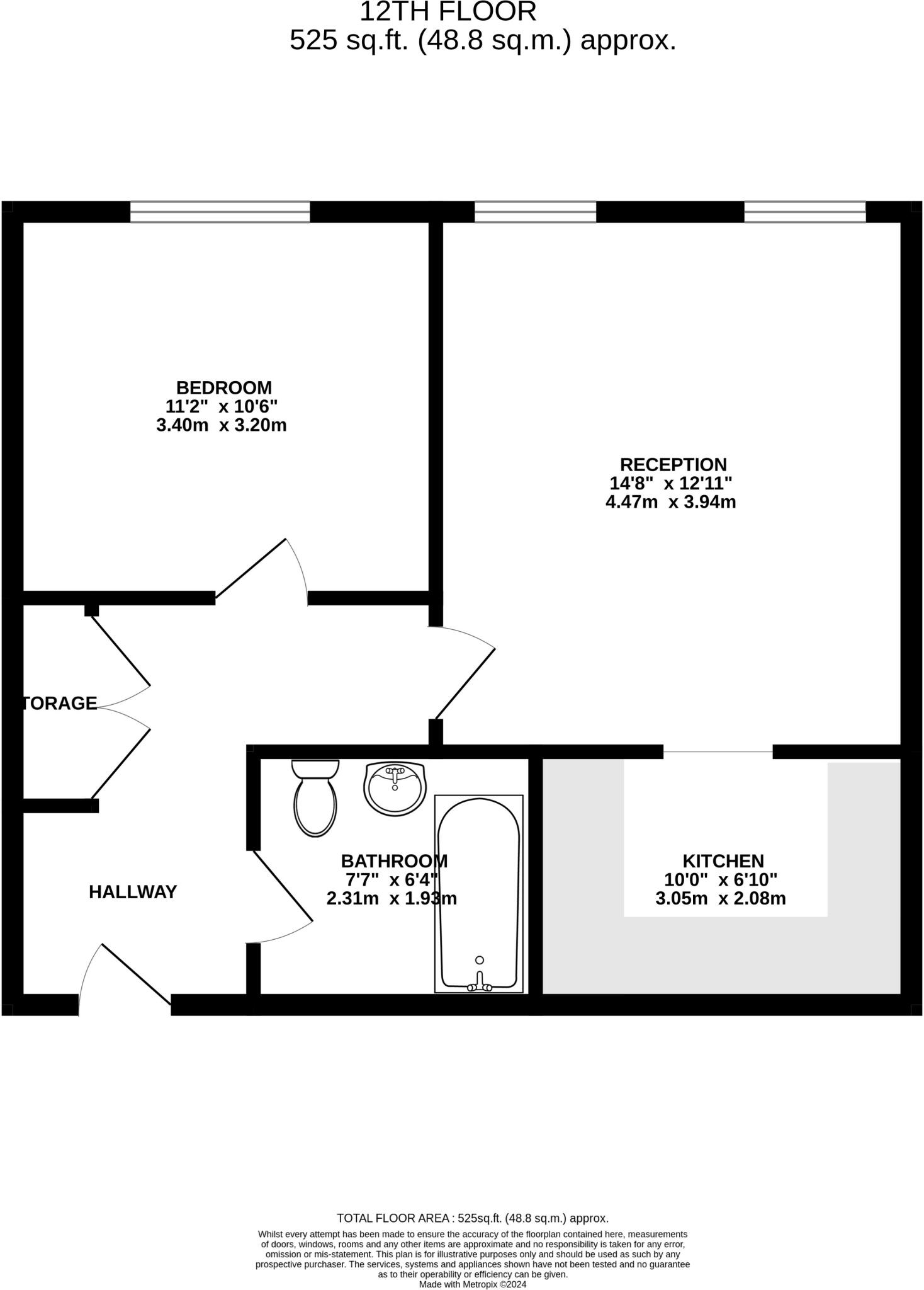
Set on the 12th floor of a modern block, this one-bedroom apartment offers efficient city living with broad transport links. A large double bedroom, generous reception, separate kitchen and useful storage make the 525 sq ft layout practical for a first-time buyer or commuter.
Highlights include clear views over Croydon, underground residents’ parking and fast broadband/mobile signal — useful for home-working. The building’s contemporary construction (2003–2006) and double glazing provide modern standards of insulation and finish.
Buyers should note a few material points: the property is compact, council tax and tenure details are not provided, and heating is via a community scheme (possible service charges). The area is classified as deprived, which may affect long-term resale values. Lift access is implied by the 12th-floor position, so reliance on building services is a factor.
Overall this is a practical, move-in-ready city flat for someone prioritising commuter convenience and modern apartment living, or an investor seeking a well-located rental in Croydon.
2 bedroom apartment for sale in London Road, Croydon, CR0 — £270,000 • 2 bed • 2 bath • 661 ft²
1 bedroom flat for sale in London Road, Croydon, CR0 — £200,000 • 1 bed • 1 bath • 499 ft²
1 bedroom apartment for sale in London Road, Croydon, CR0 — £210,000 • 1 bed • 1 bath • 542 ft²
1 bedroom apartment for sale in London Road, Croydon, CR0 — £170,000 • 1 bed • 1 bath • 500 ft²
1 bedroom apartment for sale in London Road, Croydon, CR0 — £175,000 • 1 bed • 1 bath • 501 ft²
1 bedroom flat for sale in London Road, Croydon, CR0 — £200,000 • 1 bed • 1 bath • 490 ft²


























































