DA1 2TU - 3 bedroom end of terrace house for sale in Vale Road, Dartf…

View on Property Piper

3 bedroom end of terrace house for sale in Vale Road, Dartford, Kent, DA1

Summary - 45 VALE ROAD DARTFORD DA1 2TU

3 bed 2 bath End of Terrace

**Standout Features:**
- No onward chain
- Extended family home with an en-suite in the master bedroom
- Two reception rooms plus a conservatory
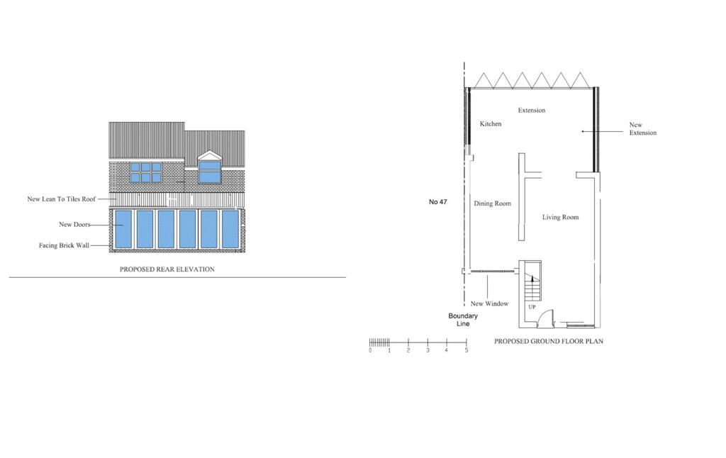
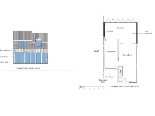
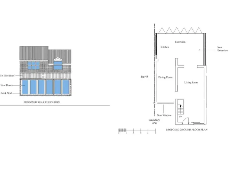
- Approved planning permission for a full-width ground floor extension
- Off-street parking and a manageable garden
- Located in a quiet cul-de-sac with excellent local schools

This beautifully presented three-bedroom end-of-terrace family home offers a perfect blend of comfort and potential in the desirable West Dartford area. With two inviting reception rooms and a spacious conservatory, natural light floods the living spaces, creating an airy environment ideal for family gatherings or quiet evenings. The master bedroom benefits from an en-suite, enhancing privacy and convenience.

The property is set in a cul-de-sac, ensuring a peaceful atmosphere while still being within catchment of outstanding local schools, including Dartford Grammar and Wilmington Grammar. Furthermore, with approved planning permission for a full-width ground floor extension, there’s room for significant enhancement, allowing you to tailor the home to your liking.

The exterior features a handy paved driveway for off-street parking and a manageable, well-maintained north-east facing garden, offering a patio area and artificial lawn for low maintenance. This charming residence is not to be missed, particularly in such a sought-after location! Act quickly and envision your family thriving in this home, packed with potential for years to come.

Property Details

Brochure Descriptions

Image Descriptions

Floorplan Description

Rooms

Textual Property Features

Detected Visual Features

EPC Details

Nearby Schools

Nearest Bars And Restaurants

,,,,}

Nearest General Shops

,,}

Nearest Grocery shops

,,}

Nearest Supermarkets

,,}

Nearest Religious buildings

,,}

Nearest Medical buildings

,,,}

Nearest Airports

,,}

Nearest Leisure Facilities

,,,,}

Nearest Tourist attractions

,,}

Nearest Train stations

,,,,}

Nearest Bus stations and stops

,,,,}

Nearest Hotels

,,}

Tags

Local Market Stats

AirBnB Data

Similar Properties

Meta

High Res Images

Compatible Images

Low res Images

Thumbnails

Raw Images

High Res Floorplan Images

Compatible Floorplan Images

Low res Floorplan Images

FloorplanImages Thumbnail

Raw Floorplan Images