PO2 0LA - 2 bed spacious two bedroom home in Lyndhurst Road, PO2 0LA

View on Property Piper

2 bedroom terraced house for sale in Lyndhurst Road, Portsmouth, Hampshire, PO2

Summary - 132 LYNDHURST ROAD PORTSMOUTH PO2 0LA

2 bed 1 bath Terraced

Well-presented 2-bed terraced house with large garden, ideal for first-time buyers or investors..
Large rear garden — uncommon for the area
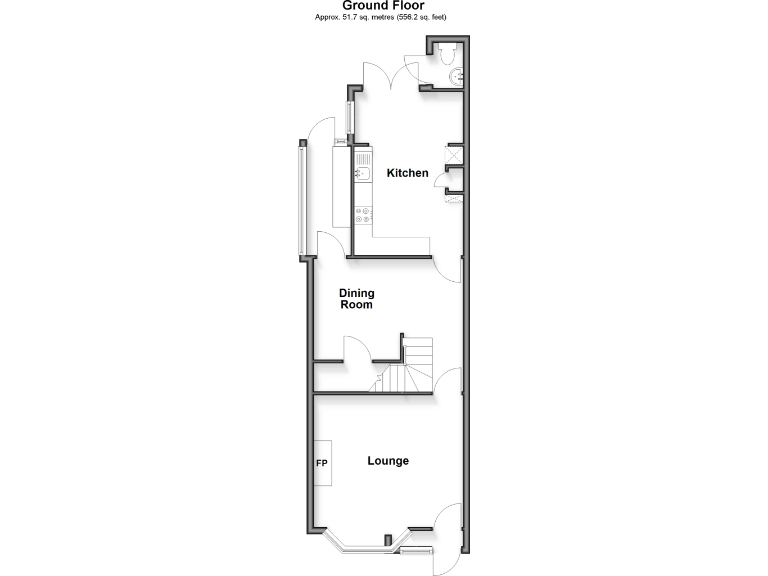
This well-presented two-bedroom terraced house on Lyndhurst Road offers a practical layout and generous room sizes across about 969 sq ft. The property is ready to move into and benefits from period character, a contemporary-feeling living room, and a large rear garden — rare for the area and useful for families or tenants.

Currently rented, the house suits first-time buyers looking for immediate occupation or investors seeking a let-ready asset. The boiler and electrics have been regularly serviced, providing short-term peace of mind, while the linear layout keeps living spaces separate and usable.

Built between 1930–1949 with cavity walls likely uninsulated, there is scope for energy upgrades (wall insulation, double-glazing history unclear) to reduce running costs and increase value. The plot is small at the front but the rear garden is a standout external space. Council tax is moderate and the local area is affluent with low crime, good schools nearby and fast broadband — all positive for resale or rental demand.

Buyers should note the property’s Victorian-era construction may require periodic maintenance and any buyer must verify tenure, services and dimensions. Overall this is a roomy, well-positioned terraced home offering immediate usability and clear potential for modest improvements to enhance comfort and efficiency.

Property Details

Image Descriptions

Floorplan Description

Rooms

Textual Property Features

Target Audience

AI Tags

Detected Visual Features

EPC Details

Nearby Schools

Nearest Bars And Restaurants

,,,,}

Nearest General Shops

,,}

Nearest Grocery shops

,,}

Nearest Supermarkets

,,}

Nearest Religious buildings

,,}

Nearest Medical buildings

,,,}

Nearest Airports

}

Nearest Leisure Facilities

,,,,}

Nearest Tourist attractions

,,}

Nearest Train stations

,,,,}

Nearest Bus stations and stops

,,,,}

Nearest Hotels

,,}

Tags

Local Market Stats

AirBnB Data

Similar Properties

Meta

High Res Images

Compatible Images

Low res Images

Thumbnails

Raw Images

High Res Floorplan Images

Compatible Floorplan Images

Low res Floorplan Images

FloorplanImages Thumbnail

Raw Floorplan Images