Three-bedroom family home with garden and parking in well-connected Temple Cowley.
Three bedrooms and one family bathroom
Enclosed rear garden with patio doors
Off-road parking for multiple vehicles
Freehold; about 893 sq ft overall
Post-war build (1950–1966); needs modernisation potential
Medium flood risk; consider insurance implications
Above-average local crime rate
Excellent mobile signal and fast broadband
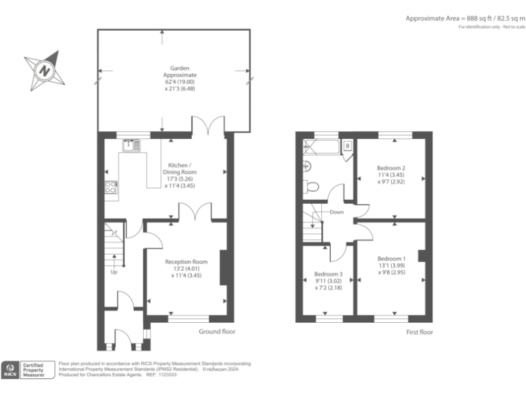
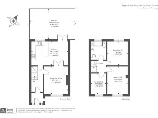
This three-bedroom semi-detached home in Temple Cowley offers practical family living with an enclosed rear garden and off-street parking for multiple vehicles. The ground floor features a front reception room and an open-plan kitchen/dining area with patio doors that open directly onto the garden, creating an easy indoor-outdoor flow. The property is freehold and spans approximately 893 sq ft, suitable for growing families or buyers wanting straightforward space near local amenities.
The house was built in the post-war period (1950–1966) and has double glazing added after 2002, mains gas heating via a boiler and radiators, and cavity-filled walls. While the accommodation is liveable, the interior will suit buyers looking to modernise or personalise; cosmetic updating and potential reconfiguration could add value. There is one family bathroom serving three bedrooms.
Practical considerations are clear: the plot is small and the area has a medium flood risk and above-average crime statistics, which buyers should factor into insurance and safety planning. On the positive side, the location is well connected with excellent mobile signal, fast broadband, and a wide range of nearby amenities and good-rated primary and secondary schools. Overall this is a pragmatic family purchase with scope to improve and adapt to modern tastes.
3 bedroom semi-detached house for sale in Temple Road Temple Cowley Oxford OX4 — £465,000 • 3 bed • 1 bath • 1166 ft²
3 bedroom semi-detached house for sale in Napier Road, Oxford, OX4 — £425,000 • 3 bed • 1 bath • 884 ft²
3 bedroom detached house for sale in Crescent Road, Oxford, OX4 — £580,000 • 3 bed • 2 bath • 1230 ft²
3 bedroom semi-detached house for sale in Phipps Road, Oxford, Oxfordshire, OX4 — £380,000 • 3 bed • 1 bath • 1151 ft²
3 bedroom semi-detached house for sale in Cleveland Drive, Cowley, OX4 — £450,000 • 3 bed • 2 bath • 1257 ft²
3 bedroom semi-detached house for sale in Kennington Road, Kennington, OX1 — £485,000 • 3 bed • 1 bath • 1067 ft²










































