Sunny south-facing garden, garage and drive in a school-friendly area.
Owned solar panels reducing energy bills
Set on a quiet North Worle street, this well-presented three-bedroom detached house suits growing families and first-time buyers seeking convenience. The property benefits from owned solar panels that reduce running costs, a southerly rear garden that catches the sun, and a wide block-paved driveway with an integral single garage.
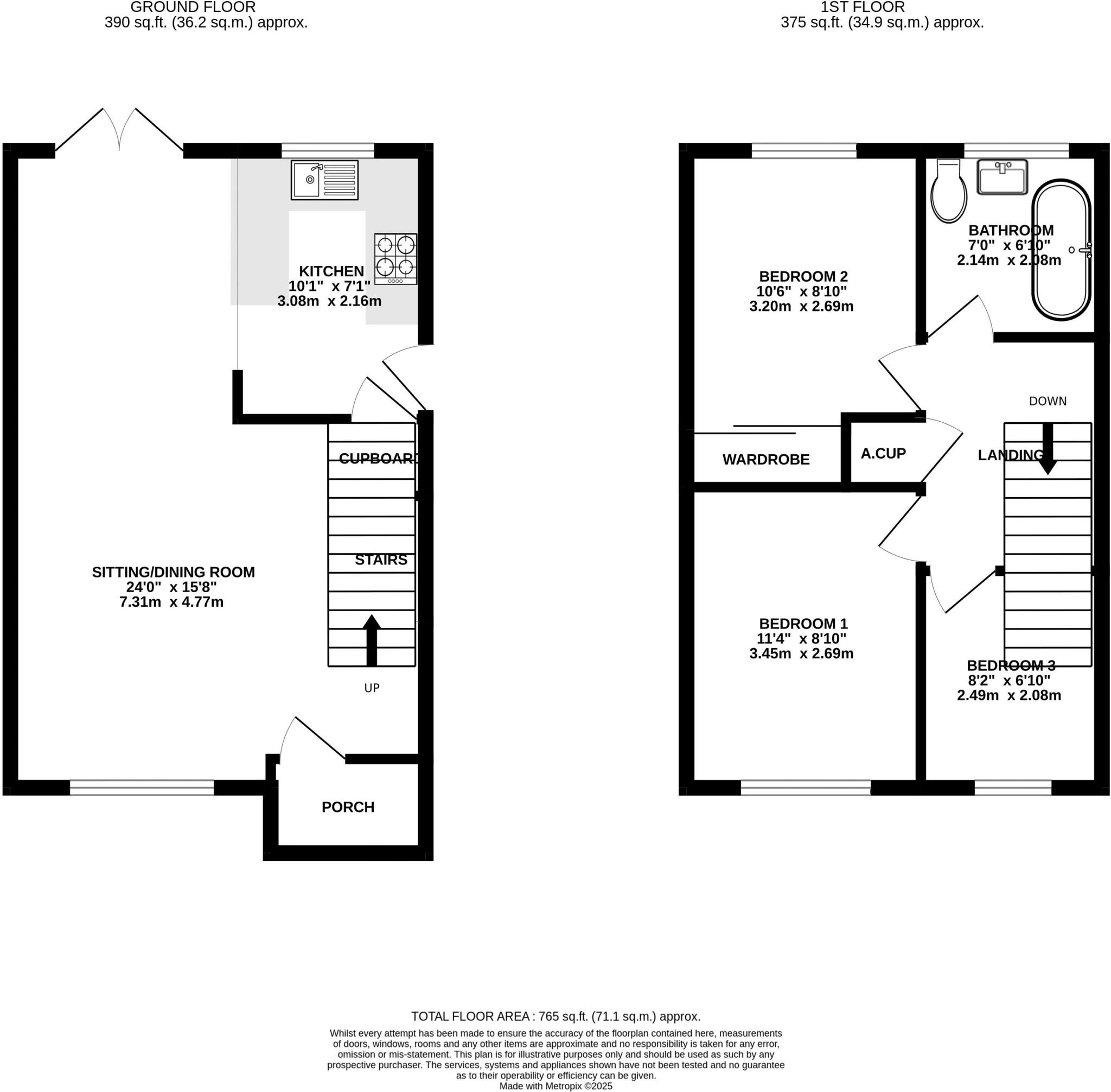
Accommodation is bright and arranged in a traditional layout: entrance hall, dual-aspect sitting/dining room, kitchen, three bedrooms and a single bathroom. At about 765 sq ft the home is compact—comfortable for family life but offering limited internal space and a single bathroom to share.
Outside, the low-maintenance front garden and enclosed south-facing rear lawn provide pleasant outdoor space while the garage and driveway supply ample parking. The location is a clear strength: shops and bus stops across the road, Castle Batch and other primary schools within walking distance, plus easy access to Worle station and the M5 for commuters.
Practical points to note: the house occupies a small plot and is modest in overall size, so buyers seeking large rooms or extensive gardens may find it limiting. Energy performance is reasonable (EPC C) and the mains-gas central heating with double glazing is already in place. Council Tax Band C reflects affordable local charges.
 3 bedroom detached house for sale in Greenacre, Weston-super-Mare, Somerset, BS22 — £375,000 • 3 bed • 2 bath • 1219 ft²
 3 bedroom detached house for sale in Greenacre, Weston-super-Mare, Somerset, BS22 — £375,000 • 3 bed • 2 bath • 1219 ft² 3 bedroom end of terrace house for sale in Longridge Way, Weston-super-Mare, Somerset, BS24 — £270,000 • 3 bed • 2 bath • 934 ft²
 3 bedroom end of terrace house for sale in Longridge Way, Weston-super-Mare, Somerset, BS24 — £270,000 • 3 bed • 2 bath • 934 ft² 3 bedroom terraced house for sale in Flamingo Crescent, Weston-super-Mare, Somerset, BS22 8XT, GB, BS22 — £260,000 • 3 bed • 1 bath • 908 ft²
 3 bedroom terraced house for sale in Flamingo Crescent, Weston-super-Mare, Somerset, BS22 8XT, GB, BS22 — £260,000 • 3 bed • 1 bath • 908 ft² 3 bedroom detached house for sale in Midhaven Rise, Worle - GOOD SIZE GARDENS, BS22 — £299,950 • 3 bed • 1 bath • 956 ft²
 3 bedroom detached house for sale in Midhaven Rise, Worle - GOOD SIZE GARDENS, BS22 — £299,950 • 3 bed • 1 bath • 956 ft² 3 bedroom detached house for sale in Manor Road, BS23 — £360,000 • 3 bed • 1 bath • 972 ft²
 3 bedroom detached house for sale in Manor Road, BS23 — £360,000 • 3 bed • 1 bath • 972 ft² 3 bedroom bungalow for sale in Greenacre, Weston-super-Mare, Somerset, BS22 — £350,000 • 3 bed • 1 bath • 1017 ft²
 3 bedroom bungalow for sale in Greenacre, Weston-super-Mare, Somerset, BS22 — £350,000 • 3 bed • 1 bath • 1017 ft²






























































