Three-bed modern home with parking and warranty, ideal for low-maintenance living.
- Built in 2018 with remaining NHBC warranty
- Chain free sale, ready for quick completion
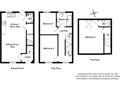
- Principal bedroom with vaulted ceiling and ensuite
- Open-plan kitchen/diner with integrated appliances
- Two allocated off-street parking spaces to front
- Small rear patio garden, low maintenance but limited space
- Compact room sizes across three storeys
- Local area has pockets of deprivation and an ageing population
A modern three-storey townhouse finished in a Georgian style, built in 2018 and still covered by a 10-year NHBC warranty. The ground floor offers a bright open-plan kitchen/diner with integrated appliances, plus a cloakroom. The top-floor principal bedroom benefits from a vaulted ceiling and en-suite WC.
Practical strengths include two allocated off-street parking spaces to the front, a low-maintenance rear patio garden and fast broadband with excellent mobile signal. Being chain free, the house is ready for a straightforward move or quick letting.
This property will suit downsizers or a small family seeking low-upkeep living close to Horncastle town centre and local amenities. Rooms are compact and the garden is small, so buyers who need large outdoor space or very generous room proportions should note those limits.
The development sits within a conservation area and a mature town setting. The wider area has pockets of deprivation and an ageing population profile; buyers should consider local services and longer-term resale dynamics alongside the clear benefits of modern construction and convenient parking.
3 bedroom terraced house for sale in 3 Banks Court, Horncastle, LN9 — £179,950 • 3 bed • 1 bath • 824 ft²
3 bedroom terraced house for sale in Cowling Close, Horncastle, LN9 — £180,000 • 3 bed • 1 bath • 939 ft²
3 bedroom terraced house for sale in West Street, Horncastle, LN9 — £160,000 • 3 bed • 1 bath • 782 ft²
3 bedroom end of terrace house for sale in 3 St Mary's Square, Horncastle, LN9 — £165,000 • 3 bed • 1 bath • 1136 ft²
3 bedroom town house for sale in 28 Bells Yard Close, Horncastle, Lincolnshire, LN9 5BT, LN9 — £220,000 • 3 bed • 2 bath • 1403 ft²
2 bedroom end of terrace house for sale in Banks Street, Horncastle, Lincs, LN9 5BW, LN9 — £130,000 • 2 bed • 1 bath • 642 ft²














































































