Large period cottage with vast gardens and versatile outbuilding — planning potential..
Large private rear garden with greenhouse, summerhouse and mature planting
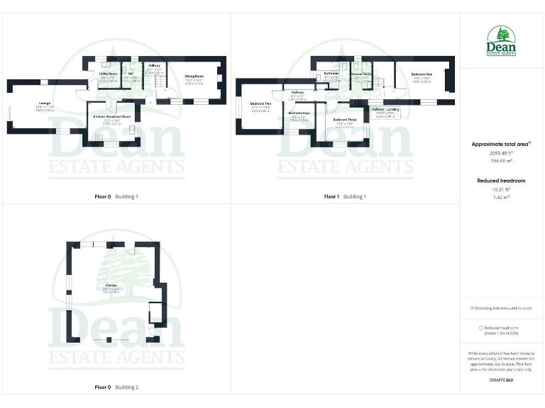
Detached large garage/workshop with power, lighting and basic plumbing
Potential to convert outbuilding to annexe/Airbnb/offices subject to planning
High flood risk — garden borders a stream; insurance/mitigation likely needed
Stone walls likely uninsulated — potential retrofit/energy improvement required
Ex-local-authority/PRC-type history; may affect mortgage or specialist surveys
Spacious four-bedroom layout across 2,093 sq ft, two reception rooms
Off-street parking with long drive and gated access
Memorial Hall Cottage is a substantial four-bedroom detached period home set on a large, private plot in the village of Blakeney. The house blends traditional features — sash windows, ornate fireplace and stone hearth — with practical modern touches such as double glazing and a mains-gas boiler. Living space includes two reception rooms, a kitchen/breakfast room, utility, bathroom and separate shower room across two storeys, offering comfortable family accommodation of about 2,093 sq ft.
The rear grounds are the standout feature: vast, level lawns, well-stocked beds, fruit trees, greenhouse, summerhouse and direct access to a stream. A spacious detached former-hall building (large garage/workshop) sits at the far end of the garden and is already fitted with power, lighting and basic plumbing — it could be used for storage, workspace or, subject to relevant planning permission, conversion to an annexe, holiday let or offices.
Buyers should note important material points plainly. The property sits in a high flood‑risk area and the plot borders a watercourse, so additional flood protection or insurance costs are likely. The stone walls are understood to have no built-in insulation and the site is an ex-local authority/PRC-type property, which may affect mortgage or repair considerations — obtain technical and lending advice. Council tax is described as expensive and the wider area indicators show local deprivation despite low crime levels.
This home will suit families or buyers seeking a large garden with versatile outbuildings, and those prepared to manage flood risk and potential retrofit works. The scale and privacy of the grounds are rare for the area; viewing is recommended to appreciate the full extent and potential of the plot.
3 bedroom cottage for sale in New Road, Blakeney, GL15 — £325,000 • 3 bed • 2 bath • 813 ft²
3 bedroom semi-detached house for sale in Moorfield Avenue, Blakeney, Gloucestershire, GL15 — £325,000 • 3 bed • 1 bath • 1189 ft²
3 bedroom semi-detached house for sale in Moorfield Avenue, Blakeney, Gloucestershire. GL15 4DA, GL15 — £450,000 • 3 bed • 2 bath • 571 ft²
4 bedroom detached house for sale in Substantial house & Grounds with building plotChurch Way, Blakeney, GL15 — £860,000 • 4 bed • 5 bath • 4627 ft²
3 bedroom terraced house for sale in Hillview, New Road, Blakeney, GL15 — £390,000 • 3 bed • 1 bath • 990 ft²
3 bedroom semi-detached house for sale in All Saints Road, Blakeney, GL15 — £180,000 • 3 bed • 1 bath • 941 ft²






























































































































































