IG1 1JE - 4 bedroom terraced house for sale in Dalkeith Road, Ilford,…

View on Property Piper

4 bedroom terraced house for sale in Dalkeith Road, Ilford, Essex, IG1

Summary - 57 DALKEITH ROAD ILFORD IG1 1JE

4 bed 2 bath Terraced

**Standout Features:**
- Spacious 4-bedroom Victorian terraced house
- Potential for loft extension (subject to planning)
- Off-street parking for two vehicles
- Large rear garden with a summer house
- Close proximity to high-rated primary and secondary schools
- Fast broadband and excellent mobile signal

**Notable Concerns:**
- Above-average crime rate in the area
- Some exterior maintenance needed, particularly the outbuilding
- Average room size and modest plot size

This well-maintained Victorian terraced house offers an ideal family home in Redbridge. With ample living space across diverse areas—including a cozy lounge and a dedicated family room—there’s room for both relaxation and entertainment. The four spacious bedrooms accommodate a growing family, making it perfect for long-term living. The large rear garden, coupled with an attractive summer house, creates an inviting outdoor retreat ideal for summer gatherings.

Value enhancements are on the horizon, as this property allows for loft extension possibilities, providing potential for future personalization. Off-street parking adds convenience for households with vehicles, while the surrounding community boasts a variety of highly-rated schools, supporting families who prioritize education.

While the area has a higher crime rate and the exterior of the outbuilding requires attention, the comfort and expansion potential make this property a compelling choice for families or first-time buyers looking to invest in a growing neighborhood. With its proximity to shopping and excellent transport links, don’t miss the opportunity to make this property your home—opportunities like this don’t last long!

Property Details

Image Descriptions

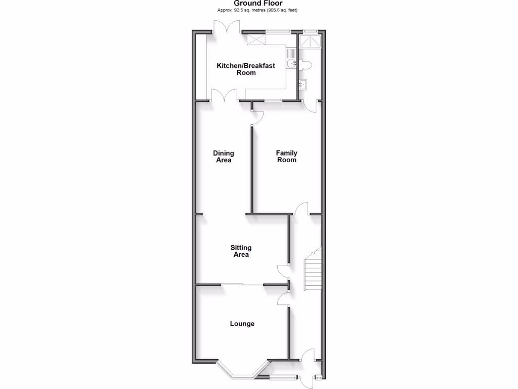
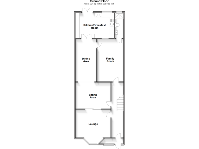
Floorplan Description

Rooms

Textual Property Features

Detected Visual Features

EPC Details

Nearby Schools

Nearest Bars And Restaurants

,,,,}

Nearest General Shops

,,}

Nearest Grocery shops

,,}

Nearest Supermarkets

,,}

Nearest Religious buildings

,,}

Nearest Medical buildings

,,,}

Nearest Airports

,}

Nearest Leisure Facilities

,,,,}

Nearest Tourist attractions

,,}

Nearest Train stations

,,,,}

Nearest Bus stations and stops

,,,,}

Nearest Hotels

,,}

Tags

Local Market Stats

AirBnB Data

Meta

High Res Images

Compatible Images

Low res Images

Thumbnails

Raw Images

High Res Floorplan Images

Compatible Floorplan Images

Low res Floorplan Images

FloorplanImages Thumbnail

Raw Floorplan Images