Three-bedroom home on 0.31 acre plot with stunning valley views and renovation potential..
Chain free sale with immediate vacant possession potential
Very large 0.31 acre plot with fruit trees, two greenhouses and lawn
Conservatory with expansive Otter valley and Dumpdon Hill views
Garage, driveway, three outdoor sheds and generous parking
Heating: oil-fired Rayburn (plus electric storage heaters) — mixed systems
Needs cosmetic updating and renovation throughout — good scope to add value
Potential for extension/room for growth subject to planning permission
Sale likely subject to Section 157 occupancy restriction (Devon residency)
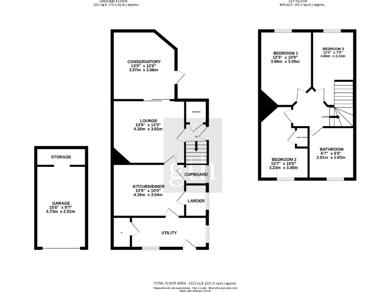
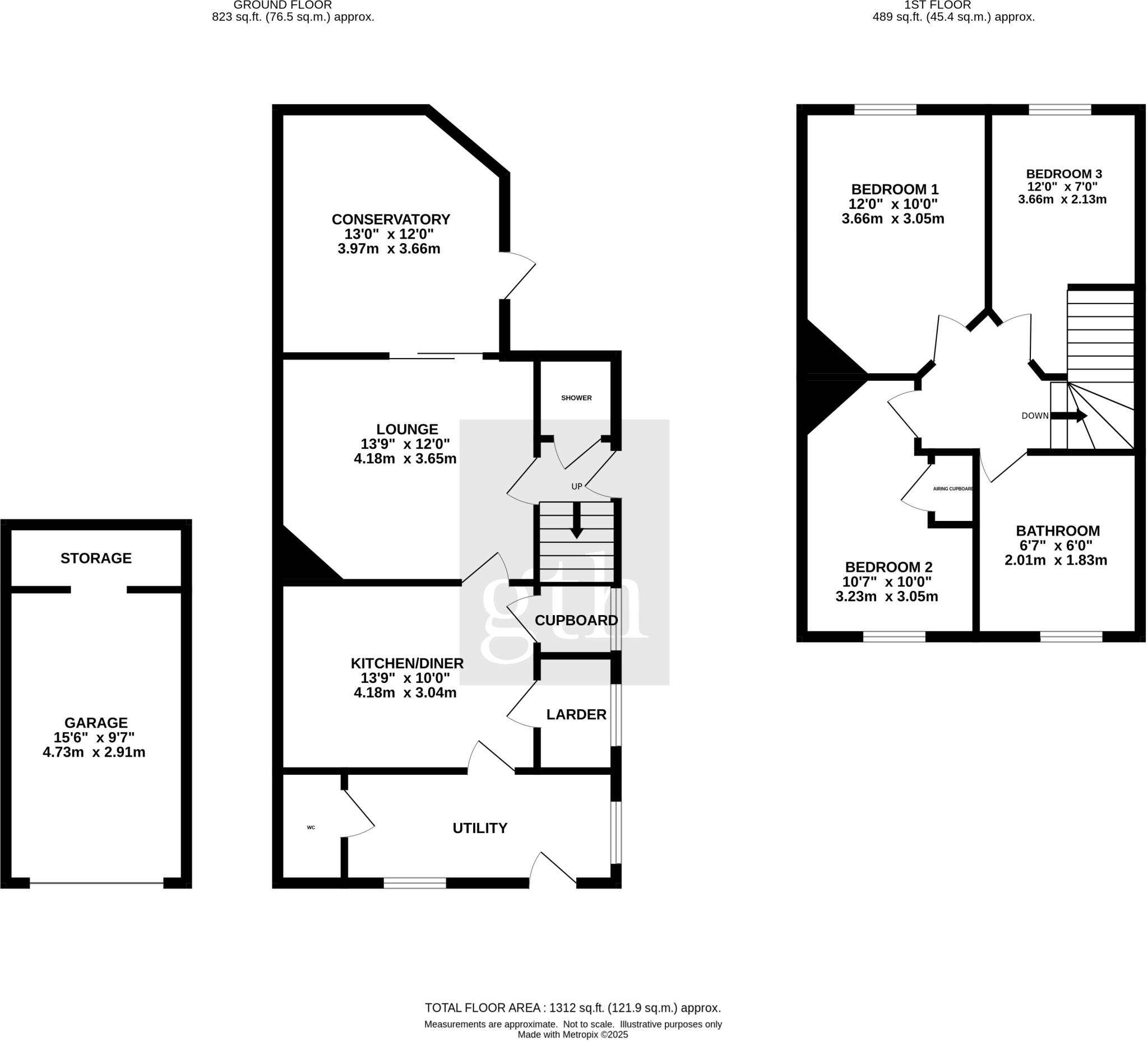
Set on a very large 0.31 acre plot with sweeping views over the Otter valley and Dumpdon Hill, this three-bedroom semi-detached home offers substantial scope for improvement and extension (subject to planning). The house includes a light-filled conservatory, large garden with fruit trees, two greenhouses and a rear garage — excellent for gardeners or buyers wanting outdoor space and rural privacy.
The property has been in the same family for over 65 years and, while structurally traditional and well‑loved, it needs cosmetic updating and ongoing renovation. Heating is provided by an oil-fired Rayburn (which serves cooking, heating and hot water) and there are electric storage heaters; windows are double glazed. There is clear potential to modernise the interior and reconfigure living space to add value.
Important practical points: the sale is chain-free and the plot offers room for growth subject to planning permission. However, there is a local occupancy restriction believed to be imposed under section 157 of the Housing Act 1985—purchasers must have lived or worked in Devon for three years. The house sits in a remote hamlet, with high local crime statistics noted; access to the A30 and Honiton’s amenities is straightforward, and mobile signal and broadband are good.
This home will suit a buyer seeking a large garden, countryside views and refurbishment potential — particularly downsizers or retirees wanting single-level living options and a peaceful rural setting. Investors looking to improve and let should check the occupancy restriction and local planning scope before proceeding.
3 bedroom bungalow for sale in Northcote Hill, Honiton, Devon, EX14 — £600,000 • 3 bed • 1 bath • 966 ft²
4 bedroom semi-detached house for sale in Fenny Bridges, Honiton, EX14 — £675,000 • 4 bed • 3 bath • 4016 ft²
3 bedroom detached house for sale in Lower Broad Oak Road, West Hill, EX11 — £645,000 • 3 bed • 1 bath • 764 ft²
3 bedroom detached house for sale in Awliscombe, EX14 — £649,950 • 3 bed • 1 bath • 1516 ft²
5 bedroom detached house for sale in The Chase, Honiton, Devon, EX14 — £415,000 • 5 bed • 2 bath • 1940 ft²
3 bedroom detached house for sale in Millhead Road, Honiton, Devon, EX14 — £280,000 • 3 bed • 1 bath • 985 ft²






























































