Quiet cul-de-sac living with orangery, parking and affordable Lifetime Lease option.
Three bedrooms and two bathrooms, including en-suite
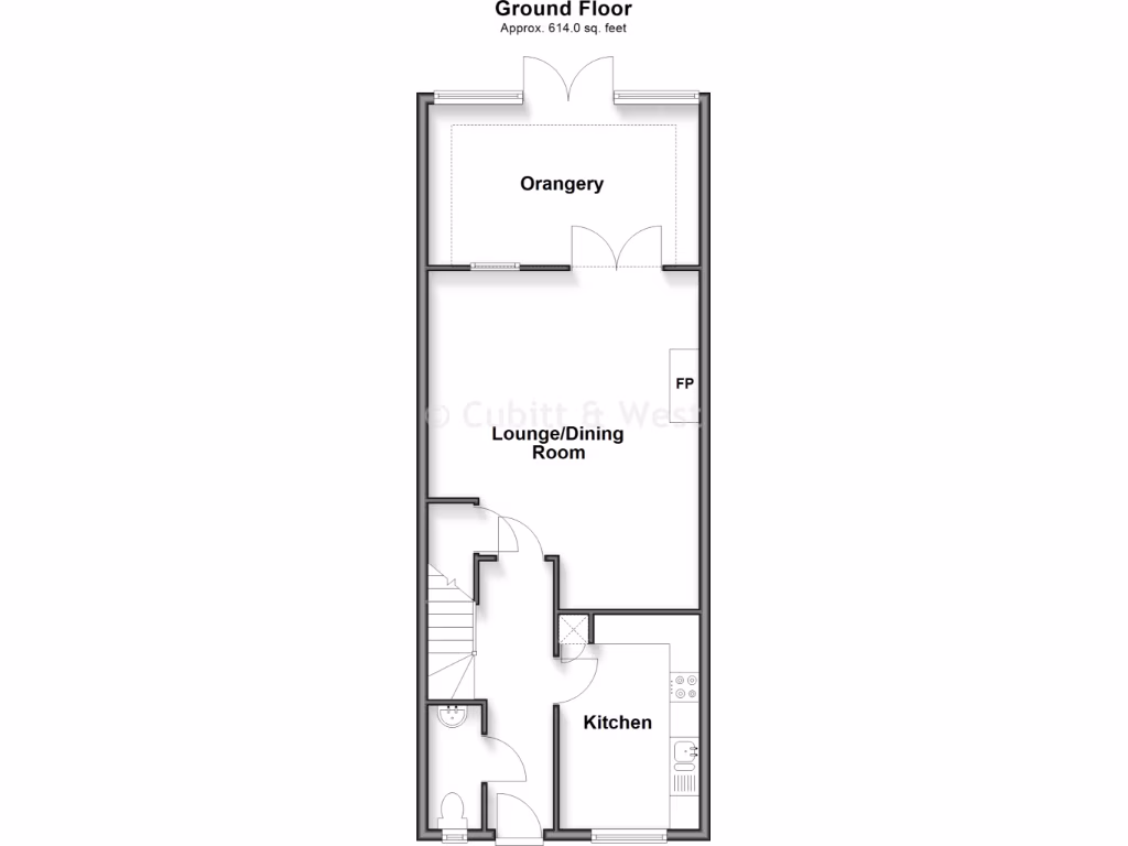
An immaculately presented three-bedroom end-of-terrace in a quiet East Grinstead cul‑de‑sac, ideal for downsizers seeking low-maintenance comfort close to local amenities. The house feels bright and open thanks to a recently added orangery used as a family room, a generous lounge/diner and a modern eat-in kitchen. Off‑street parking and small front and rear gardens add practical convenience.
This property is being offered with a Home for Life Lifetime Lease example price for over‑60s: a guide Lifetime Lease price of £297,500 (market value £450,000). The actual Lifetime Lease cost depends on your age, circumstances and the share you choose (up to 50%). Note this savings option is only available to purchasers aged 60 and over; otherwise the full market price applies.
Accommodation totals about 798 sq ft and includes two bathrooms (one en‑suite). The home is freehold, in a very affluent area with fast broadband and excellent mobile signal. It suits those wanting an easy‑care retirement base within walking distance of shops, bus links and local leisure facilities.
Important practical points: the overall footprint is small, so internal space is limited compared with larger family homes. The orangery is a recent addition — buyers should verify planning/building regulation consents. Vendors are matched with an onward purchase, so there is a dependent chain to note.
3 bedroom detached house for sale in Holtye Road, East Grinstead, West Sussex, RH19 — £561,500 • 3 bed • 3 bath • 1434 ft²
3 bedroom semi-detached bungalow for sale in Fairlawn Crescent, East Grinstead, West Sussex, RH19 — £314,000 • 3 bed • 1 bath • 2465 ft²
3 bedroom semi-detached house for sale in Foxglove Drive, Crawley, West Sussex, RH10 — £314,000 • 3 bed • 2 bath • 1195 ft²
3 bedroom detached bungalow for sale in Fairlawn Crescent, East Grinstead, West Sussex, RH19 — £380,000 • 3 bed • 1 bath • 2465 ft²
2 bedroom terraced house for sale in The Squires, Pease Pottage, Crawley, West Sussex, RH11 — £241,500 • 2 bed • 1 bath • 646 ft²
3 bedroom semi-detached house for sale in Shirley Avenue, Redhill, Surrey, RH1 — £297,500 • 3 bed • 1 bath • 797 ft²


























































