Spacious single storey home with south-facing gardens and convertible garage in peaceful Hook Norton..
Detached architect-designed bungalow with cedar cladding
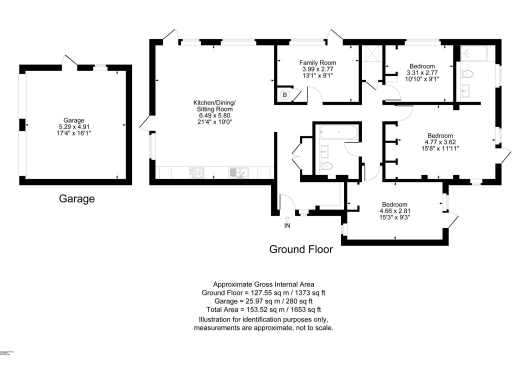
Set on an elevated plot in peaceful Hook Norton, this detached, architect-designed bungalow offers single-storey living with generous indoor and outdoor space. The open-plan kitchen/living area, high ceilings and engineered wood floors create a bright, comfortable hub, complemented by a feature wood burner for ambience and efficient zone heating.
The property sits within mature, south-facing wraparound gardens with substantial decking and three low-maintenance sections, including a large vegetable area. A double garage provides secure parking and scope for conversion or extension (subject to planning) to create a home office or annex.
Practical details include oil-fired boiler heating, double glazing and good broadband and mobile signals. Note there is a medium flood risk for the area, above-average council tax, and the main fuel is oil rather than mains gas. A purchase administration fee of £300 is payable on offer acceptance. These factors should be considered alongside the bungalow’s large plot and peaceful location.
3 bedroom detached house for sale in Goldings Road, Hook Norton, Banbury, Oxfordshire, OX15 — £415,000 • 3 bed • 2 bath • 1138 ft²
3 bedroom semi-detached house for sale in Goldings Road, Hook Norton, Banbury, Oxfordshire, OX15 — £385,000 • 3 bed • 1 bath • 1012 ft²
3 bedroom detached bungalow for sale in Sibford Road, Hook Norton, OX15 — £595,000 • 3 bed • 2 bath • 1153 ft²
3 bedroom detached house for sale in Hollybush Road, Hook Norton, OX15 — £395,000 • 3 bed • 1 bath • 1065 ft²
2 bedroom detached house for sale in Bridge Hill, Hook Norton, Banbury, Oxfordshire, OX15 — £525,000 • 2 bed • 1 bath • 1312 ft²
3 bedroom detached house for sale in Orchard Road, Hook Norton, Banbury, Oxfordshire, OX15 — £525,000 • 3 bed • 1 bath • 1093 ft²






































































