Ready-for-Christmas three-bedroom family home with solar and EV charging.
Three-bedroom detached new build with private garden and garage
Master bedroom includes en-suite; family bathroom on first floor
Solar panels and EV charging point for lower running costs
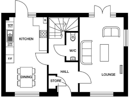
Open-plan kitchen/diner with French doors to the garden
Freehold tenure; approx 1,015 sq ft living space
Medium flood risk; check insurance and local mitigation
Broadband speeds reported as slow — limited for heavy streaming/work from home
Local crime levels above average; investigate neighbourhood data
Move-in-ready three-bedroom detached new build on Shobnall Road, offered freehold and designed for modern family living. The ground floor provides an open-plan kitchen/dining area with French doors to a private rear garden, alongside a separate living room and practical ground-floor WC. Upstairs there are three well-proportioned bedrooms, the master with an en-suite, plus a family bathroom.
Energy-efficiency is a clear selling point: fitted solar panels and an EV charging point reduce running costs and future-proof the home for electric motoring. On-plot parking and a single garage add convenience for a family with one or two cars, and the plot size is described as decent for outdoor use and play.
Buyers should note a few material considerations: broadband speeds in the area are reported as slow, and local crime levels are above average. The property sits in a medium flood-risk zone — buyers should check insurance and local flood mitigation details. Overall this is a practical, energy-efficient family home in a suburban location close to Burton-on-Trent’s amenities and commuter routes.
3 bedroom detached house for sale in Shobnall Road,
Burton-On-Trent,
DE14 2BE
, DE14 — £309,995 • 3 bed • 2 bath • 1015 ft²
3 bedroom town house for sale in Shobnall Road,
Burton-On-Trent,
DE14 2BE
, DE14 — £269,995 • 3 bed • 2 bath
4 bedroom detached house for sale in Shobnall Road,
Burton-On-Trent,
DE14 2BE
, DE14 — £334,995 • 4 bed • 2 bath • 1262 ft²
3 bedroom town house for sale in Shobnall Road,
Burton-On-Trent,
DE14 2BE
, DE14 — £299,995 • 3 bed • 1 bath
3 bedroom semi-detached house for sale in Shobnall Road,
Burton-On-Trent,
DE14 2BE
, DE14 — £270,000 • 3 bed • 2 bath
3 bedroom end of terrace house for sale in Shobnall Road,
Burton-On-Trent,
DE14 2BE
, DE14 — £318,950 • 3 bed • 1 bath


































