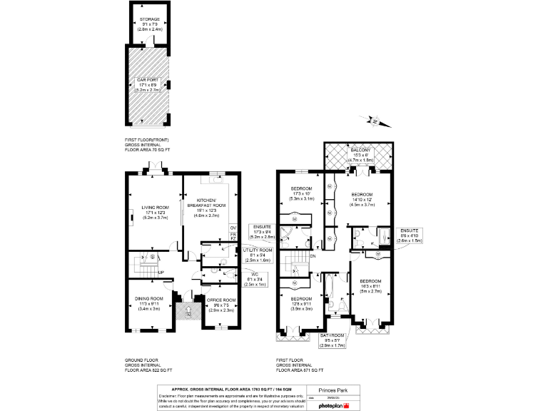
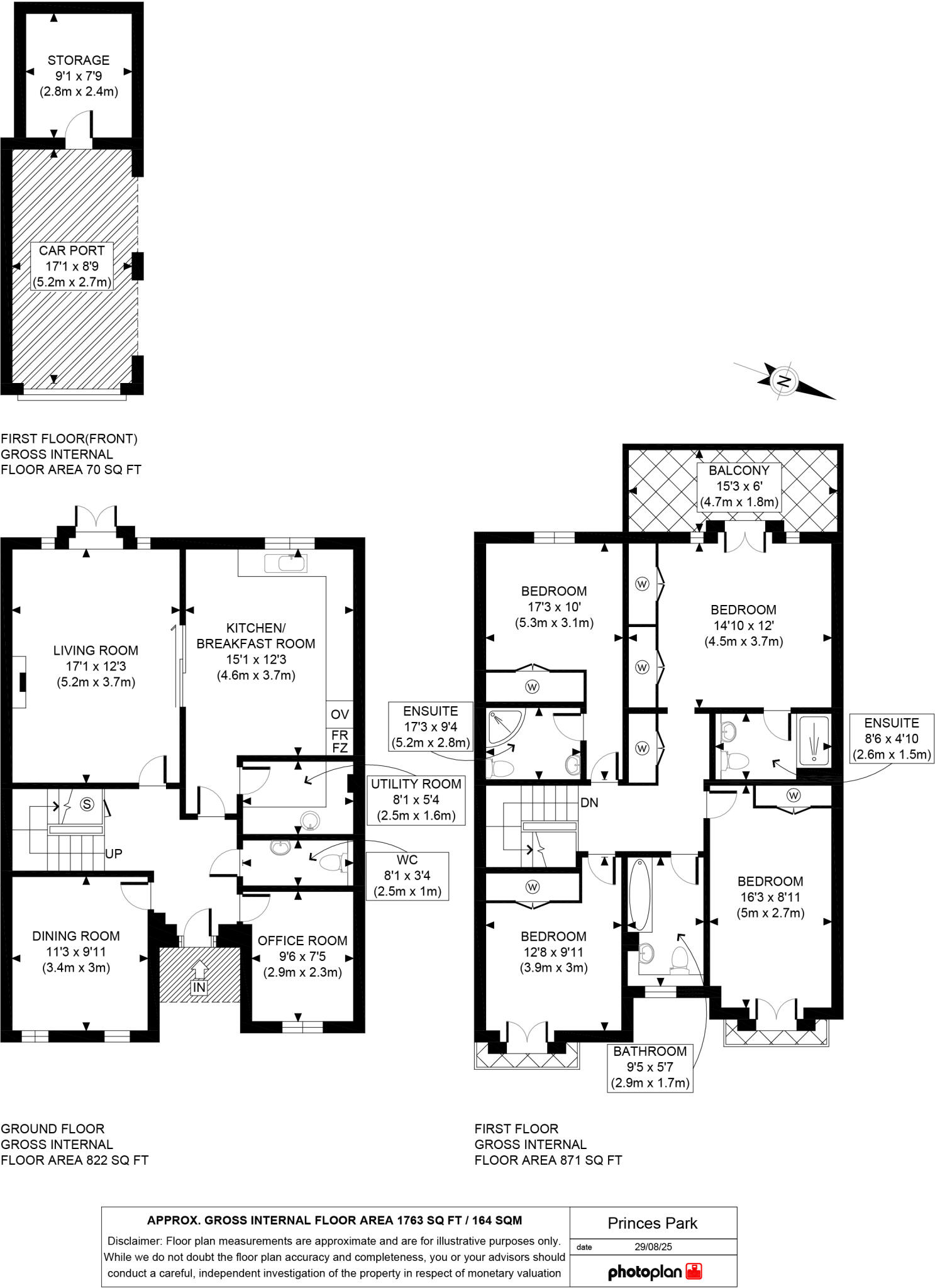
Four spacious bedrooms and three reception rooms
Three fully upgraded bathrooms (2025)
Freehold, chain free — available for quick move
South‑west facing low‑maintenance lawn and private balcony
Two private parking spaces; one with EV charging
Car barn storage provided but has no electricity
Communal grounds/orchard maintained by management company (fees apply)
Close to M25/M4 and 15 minutes to Heathrow Terminal 5
This newly renovated four-bedroom townhouse sits in a small, gated development set around well-kept communal grounds and a shared orchard. The house offers contemporary living across three reception rooms and 1,693 sq ft of adaptable space, with recent 2025 upgrades including three new bathrooms, a new boiler, solar hot-water panels and Hive heating with zoned controls.
Practical family features include a south‑west facing, low‑maintenance lawn and a balcony from the master with open views. Two private parking spaces are provided (one with an EV charging point) plus a covered car barn with dry storage; visitor parking is also available. The property is freehold and offered chain free for a faster move.
The location suits commuters and families: fast links to the M25/M4 and a 15‑minute drive to Heathrow Terminal 5, with local leisure and schools rated Good to Outstanding nearby. The gated development and shared grounds create a quiet, community feel while remaining close to town amenities.
Note the development is managed collectively: communal grounds and orchard are maintained by a management company and costs are shared among homeowners. The car barn has no electricity supply. Council Tax Band G applies. These are factual considerations for ongoing ownership costs.
4 bedroom terraced house for sale in Old School Mews, Staines-upon-Thames, Surrey, TW18 — £650,000 • 4 bed • 2 bath • 1600 ft²
5 bedroom detached house for sale in Oakington Close, London, TW16 — £1,175,000 • 5 bed • 3 bath • 2104 ft²
4 bedroom terraced house for sale in Addlestone, Surrey, KT15 — £525,000 • 4 bed • 2 bath • 1087 ft²
4 bedroom detached house for sale in Firefly Road, Longcross, Chertsey, Surrey, KT16 — £995,000 • 4 bed • 3 bath • 2124 ft²
4 bedroom semi-detached house for sale in Warrens End, Row Town, KT15 — £900,000 • 4 bed • 2 bath • 1605 ft²
4 bedroom end of terrace house for sale in Longford Way, Stanwell, Surrey, TW19 — £575,000 • 4 bed • 3 bath • 1172 ft²


































































