Two self-contained flats with parking, roof terrace and scope to create a family home (STPP).
- Chain-free freehold with vacant possession
- Arranged as two self-contained flats, immediate rental potential
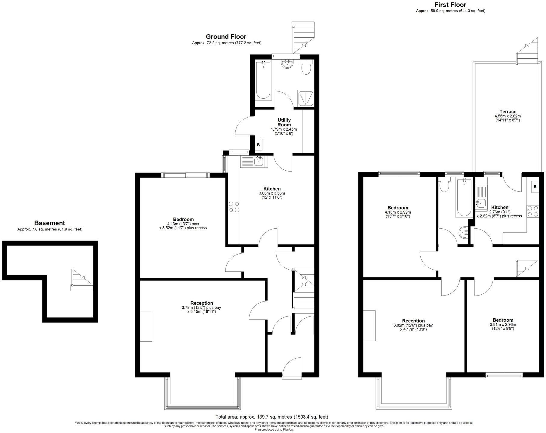
- One-bedroom ground-floor and two-bedroom first-floor flats
- Potential to reinstate single dwelling (STPP)
- Potential to extend (STPP); planning required
- Off-street parking, communal rear garden, first-floor roof terrace
- Early-20th-century solid brick; insulation likely required
- EPC C, mains gas boiler and double glazing present
A rare chain-free opportunity close to Ilford's Elizabeth Line: this mid-terrace property is offered as two self-contained flats with vacant possession and freehold title. The ground-floor one-bedroom and first-floor two-bedroom flats deliver immediate rental income or short-term holding returns, plus basement storage and off-street parking.
The layout also suits an owner-occupier or developer. There is clear potential to reinstate the property as a single four-bedroom family home and scope to extend (both subject to planning permission). The first-floor roof terrace and communal rear garden add outdoor space that enhances appeal in dense urban surroundings.
Buyers should note the building dates from the early 20th century with solid brick walls (insulation not assumed) and will benefit from some updating to maximise value. Any conversion or extension requires planning consent; factor these costs and timescales into proposals. EPC rating C, mains gas central heating and double glazing in place.
Positioned near good primary and secondary schools and leafy Valentines Park, the property suits long-term landlords, small developers or a family seeking to create a larger home. The guide price reflects the investment and improvement upside in a well-connected Ilford location.
4 bedroom terraced house for sale in Kensington Gardens, Ilford, IG1 — £750,000 • 4 bed • 2 bath • 1596 ft²
3 bedroom end of terrace house for sale in Balfour Road, Ilford, IG1 — £600,000 • 3 bed • 2 bath • 1815 ft²
5 bedroom semi-detached house for sale in Wellesley Road, Ilford, Essex, IG14JX, IG1 — £820,000 • 5 bed • 3 bath • 1181 ft²
3 bedroom house for sale in Wanstead Park Road, Ilford, IG1 — £625,000 • 3 bed • 2 bath • 1450 ft²
3 bedroom terraced house for sale in Kingston Road, Ilford, IG1 — £475,000 • 3 bed • 2 bath • 1006 ft²
3 bedroom terraced house for sale in Khartoum Road, Ilford, IG1 — £425,000 • 3 bed • 1 bath • 759 ft²






















































































