**Standout Features:**
- Classic three-bedroom Victorian semi-detached design
- Refitted kitchen with contemporary finishes
- Stunning river views from two bedrooms
- Chain-free sale
- Low maintenance garden with direct river access
**Concerns:**
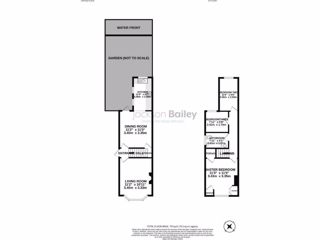
- Small overall size (797 sq ft)
- Limited insulation in walls
- Above-average local crime rates
- Potential maintenance needs due to age (constructed 1900-1929)
Nestled in the sought-after area of St Denys, this charming three-bedroom Victorian semi-detached house is perfect for families and boating enthusiasts alike. Boasting direct access to the River Itchen, the property features a beautifully refitted kitchen, a cozy living room with a feature bay window, and a dining area that flows seamlessly. The first floor hosts three welcoming bedrooms, two of which offer breathtaking views of the river, complemented by a conveniently located family bathroom.
Though its cozy footprint may be a consideration, this freehold property is ideally positioned to enjoy excellent transport links to Southampton City Centre while being surrounded by essential amenities and quality schools. The low maintenance garden provides a serene outdoor retreat, while the character-filled interior invites you to create your own unique space. With fast broadband and excellent mobile signals, you will feel both comfortable and connected here. Don't miss the opportunity to secure this delightful piece of St Denys charm—schedule your viewing today and envision the relaxed lifestyle awaiting you!
3 bedroom semi-detached house for sale in Priory Road, St Denys, Southampton, Hampshire, SO17 — £260,000 • 3 bed • 1 bath • 837 ft²
4 bedroom house for sale in Priory Road, Southampton, SO17 — £600,000 • 4 bed • 2 bath • 1700 ft²
3 bedroom semi-detached house for sale in Priory Road, Southampton, SO17 — £325,000 • 3 bed • 1 bath • 882 ft²
2 bedroom semi-detached house for sale in Priory Road, Southampton, Hampshire, SO17 — £259,950 • 2 bed • 1 bath • 629 ft²
3 bedroom detached house for sale in Priory Road, St Denys, Hampshire, SO17 — £325,000 • 3 bed • 2 bath • 1185 ft²
3 bedroom house for sale in Collier Close, Southampton, SO17 — £350,000 • 3 bed • 1 bath • 998 ft²


















































