Chain-free three-bed terraced house close to shops and station, with flexible layout and private courtyard.
Chain-free Victorian mid-terrace close to shops and train station
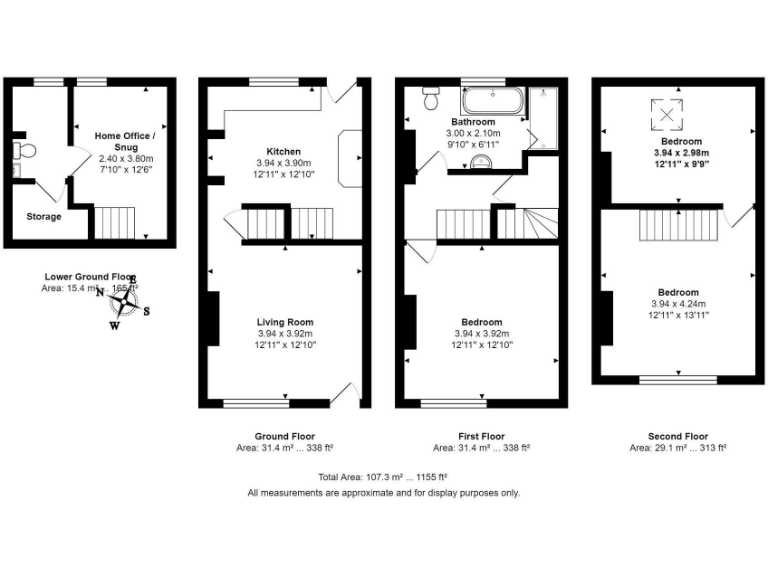
A chain-free Victorian mid-terrace offering flexible three-bedroom accommodation over four levels, close to shops and the train station. Recently redecorated throughout, the house retains period character including a feature fireplace and higher ceilings in parts, and benefits from modern kitchen units and double glazing.
Layout versatility is a key strength: a lower-ground snug could function as a home office or second reception, while the second-floor arrangement of two bedrooms could be adapted to create a separate landing between them. The rear opens onto an enclosed, east-facing stone-flagged courtyard — a low-maintenance outdoor space rather than a large garden.
Buyers should note practical constraints: the property has an EPC rating of E and the original sandstone/limestone walls are assumed to have no insulation, which may affect heating costs. The plot is small, there is a single main bathroom, and local crime levels are above average. Council tax band is low and broadband is fast, making the house economical to run and well connected.
This home will suit families or professionals seeking a well-located starter or someone wanting a characterful property with scope to reconfigure the upper floor. It is offered freehold and vacant, allowing a buyer to move quickly or plan modest energy-efficiency improvements.
2 bedroom terraced house for sale in Avenue Grove, Harrogate, HG2 — £189,950 • 2 bed • 1 bath • 940 ft²
3 bedroom terraced house for sale in Wharfedale Avenue, Harrogate, HG2 — £265,000 • 3 bed • 1 bath • 766 ft²
4 bedroom terraced house for sale in Stonefall Avenue, Harrogate, North Yorkshire, HG2 — £260,000 • 4 bed • 1 bath • 909 ft²
2 bedroom terraced house for sale in Ashfield Terrace, Harrogate, HG1 — £180,000 • 2 bed • 1 bath • 671 ft²
2 bedroom terraced house for sale in Coronation Grove, Harrogate, North Yorkshire, HG2 — £228,000 • 2 bed • 1 bath • 586 ft²
3 bedroom terraced house for sale in Albert Place, Harrogate, HG1 — £230,000 • 3 bed • 2 bath • 975 ft²






















































