L17 6DW - 4 bed detached family home in Maybank Grove, L17 6DW

View on Property Piper

4 bedroom detached house for sale in Maybank Grove, Aigburth, Liverpool, L17

Summary - 3, MAYBANK GROVE, LIVERPOOL L17 6DW

4 bed 2 bath Detached

Superb presentation, private garden and no onward chain for quick move.
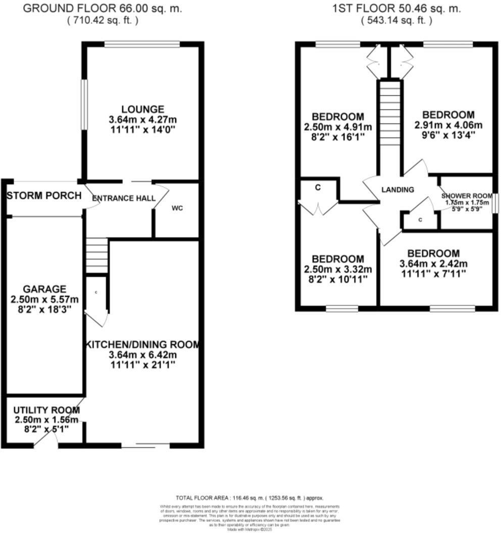
Detached four-bedroom family home, approx. 1,253 sq ft
This detached four-bedroom home in Maybank Grove is superbly presented and ready to move into with no onward chain. Set over two storeys, the layout suits a growing family: two reception rooms, an open-plan kitchen/dining area, utility room and an integral garage add everyday convenience. The property totals about 1,253 sq ft and sits on a decent plot with private, landscaped rear gardens and off-road parking.

Located in Aigburth L17, the house is within walking distance of the South Liverpool waterfront and sits close to several highly rated schools, including Sudley Primary and Liverpool College. Broadband and mobile signal are strong, local crime levels are low and the area profile shows a concentration of highly qualified professionals.

Practical details to note: freehold tenure and chain-free sale speed the move, while council tax is moderate. The home reflects a 1970s detached style externally but is presented to a contemporary standard inside. Buyers seeking easy, family-focused living with good outdoor space and solid local amenities will find this a compelling option.

Property Details

Brochure Descriptions

Image Descriptions

Floorplan Description

Rooms

Textual Property Features

Target Audience

AI Tags

Detected Visual Features

Nearby Schools

Nearest Bars And Restaurants

,,,,}

Nearest General Shops

,,}

Nearest Grocery shops

,,}

Nearest Supermarkets

,,}

Nearest Religious buildings

,,}

Nearest Medical buildings

,,,}

Nearest Airports

}

Nearest Leisure Facilities

,,,,}

Nearest Tourist attractions

,,}

Nearest Train stations

,,,,}

Nearest Bus stations and stops

,,,,}

Nearest Hotels

,,}

Tags

Local Market Stats

AirBnB Data

Similar Properties

Meta

High Res Images

Compatible Images

Low res Images

Thumbnails

Raw Images

High Res Floorplan Images

Compatible Floorplan Images

Low res Floorplan Images

FloorplanImages Thumbnail

Raw Floorplan Images