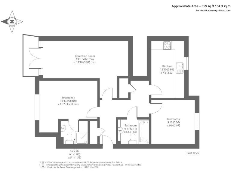
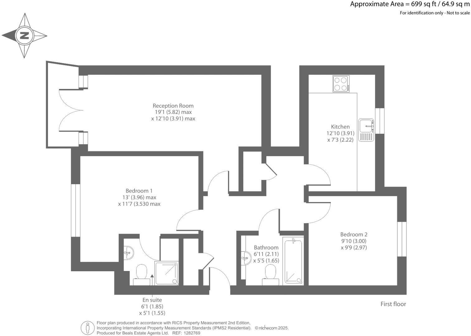
### Standout Features:
- Ground floor apartment with two double bedrooms
- En-suite shower room and additional family bathroom
- Spacious lounge/dining area with access to a balcony
- Allocated off-road parking
- Well-equipped fitted kitchen
- Low crime area in a peaceful location
- Leasehold tenure with reasonable service charge
### Summary:
Discover coastal living at this inviting ground-floor apartment in the desirable Priddy's Hard area of Gosport, just a short walk to the shoreline. Perfect for couples, young families, or professionals seeking a modern, practical space, this two-bedroom flat features a light and airy lounge/dining room that effortlessly flows to a private balcony, ideal for enjoying the fresh sea air. The fitted kitchen offers ample storage and workspace, while the master bedroom boasts a convenient en-suite, complemented by another well-appointed family bathroom.
Additional highlights include allocated off-street parking and close proximity to local amenities and reputable schools, making it an excellent choice for those prioritizing convenience and community. With excellent mobile connectivity and a tranquil setting, this apartment represents a unique opportunity for comfortable living in an affluent area.
While the apartment itself is in good condition and low-maintenance, please note that the service charge and leasehold details should be considered. With a reasonable price tag of £175,000, this space offers an exceptional balance of modern living and charming locale—don’t miss the chance to make it your own!
2 bedroom apartment for sale in Canada Court, Hayling Close, Priddy's Hard, Gosport, PO12 — £175,000 • 2 bed • 2 bath
2 bedroom flat for sale in Heritage Way, Gosport, PO12 — £170,000 • 2 bed • 1 bath • 465 ft²
2 bedroom apartment for sale in St. Helier Road, Gosport, Hampshire, PO12 — £179,995 • 2 bed • 2 bath • 657 ft²
2 bedroom flat for sale in Searle Drive, Priddys Hard, Gosport, PO12 — £185,000 • 2 bed • 1 bath • 624 ft²
2 bedroom ground floor flat for sale in Heritage Way, Priddy's Hard, PO12 — £200,000 • 2 bed • 2 bath • 596 ft²
2 bedroom flat for sale in Bucklers Road, Priddy's Hard, Gosport, PO12 — £185,000 • 2 bed • 2 bath • 646 ft²






















































