Ideal starter home or buy to let in central Auchterarder.
- Central High Street location, immediate access to shops and transport
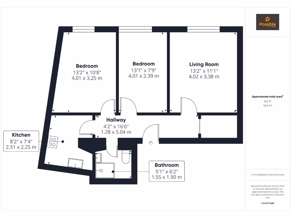
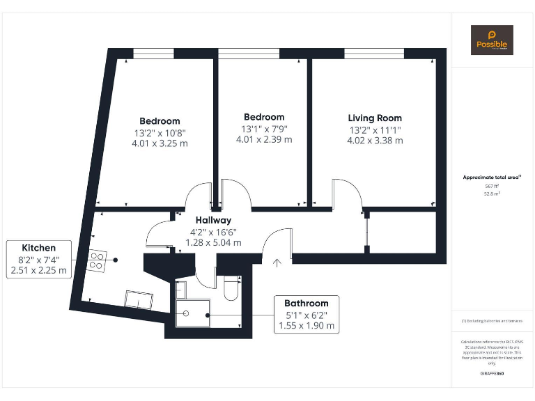
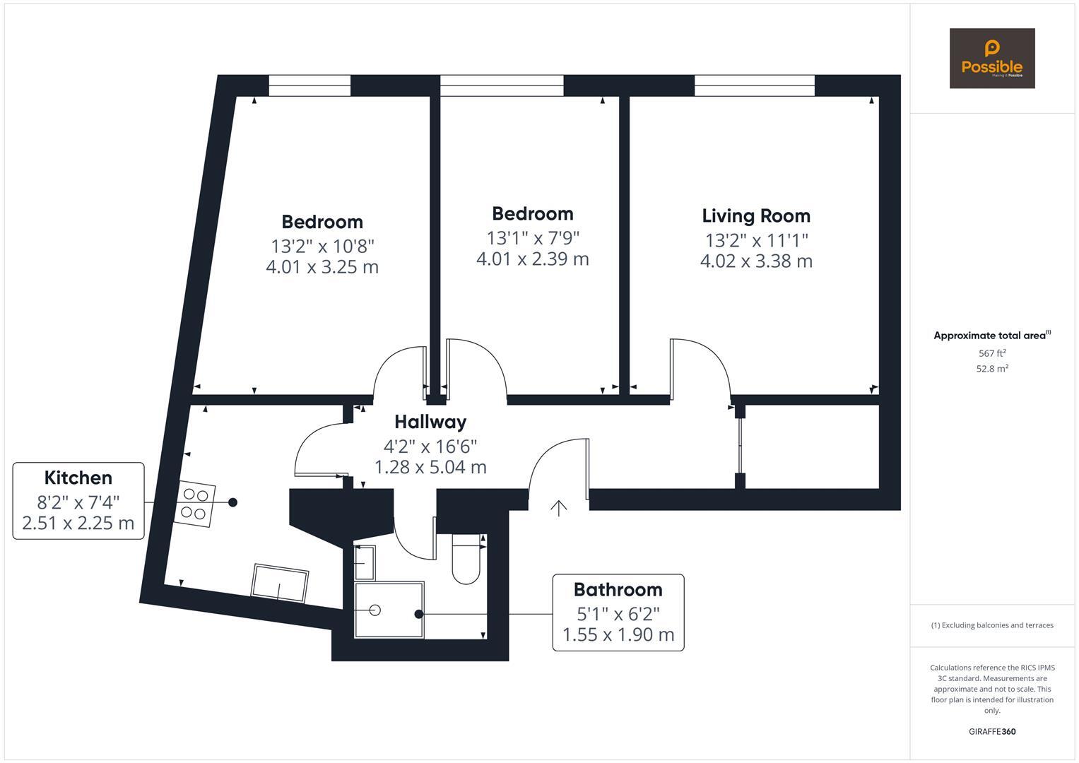
- Two double bedrooms within a compact 567 sq ft layout
- Modern fitted kitchen and contemporary shower room
- Electric heating and double glazing; simple maintenance, potentially higher bills
- Freehold tenure and very low council tax
- Average broadband speeds; excellent mobile signal
- Small property footprint; limited communal outdoor space
- Wider area classified as very deprived, may affect resale or rental returns
Set on Auchterarder’s bustling High Street, this bright first-floor flat offers a compact, move-in-ready two-bedroom layout ideal for a first home or buy-to-let. The living room benefits from a large window and neutral décor, while the modern fitted kitchen and contemporary shower room reduce immediate upgrade costs.
Both bedrooms are doubles, giving flexible sleeping and working arrangements within 567 sq ft. The property is double glazed and heated by electric radiators, making maintenance straightforward, though running costs may be higher than gas-heated homes. Freehold tenure and very low council tax add ongoing value.
Practical considerations: the flat is relatively small and sits in a very deprived part of the wider area, which may affect resale or rental yields. Broadband speeds are average but mobile signal is excellent. Communal outdoor space appears limited, and any buyer seeking large gardens or substantial interiors should note the compact footprint.
For a first-time buyer seeking central convenience or an investor targeting straightforward rental stock, this property delivers strong location benefits and low immediate repair requirements. Viewing is recommended to judge space and local amenity fit in person.
2 bedroom apartment for sale in High Street, Auchterarder, PH3 — £100,000 • 2 bed • 1 bath • 583 ft²
1 bedroom flat for sale in 1 Crown Court, High Street, Auchterarder, PH3 1BJ, PH3 — £80,000 • 1 bed • 1 bath • 527 ft²
2 bedroom flat for sale in Abbey Road, Auchterarder, PH3 — £155,000 • 2 bed • 1 bath • 764 ft²
2 bedroom terraced house for sale in Kincardine Road, Auchterarder, PH3 — £155,000 • 2 bed • 1 bath • 753 ft²
1 bedroom flat for sale in 58 High Street, Crieff, Perthshire, PH7 — £65,000 • 1 bed • 1 bath • 420 ft²
1 bedroom flat for sale in High Street, Auchterarder, PH3 — £115,000 • 1 bed • 1 bath






















































