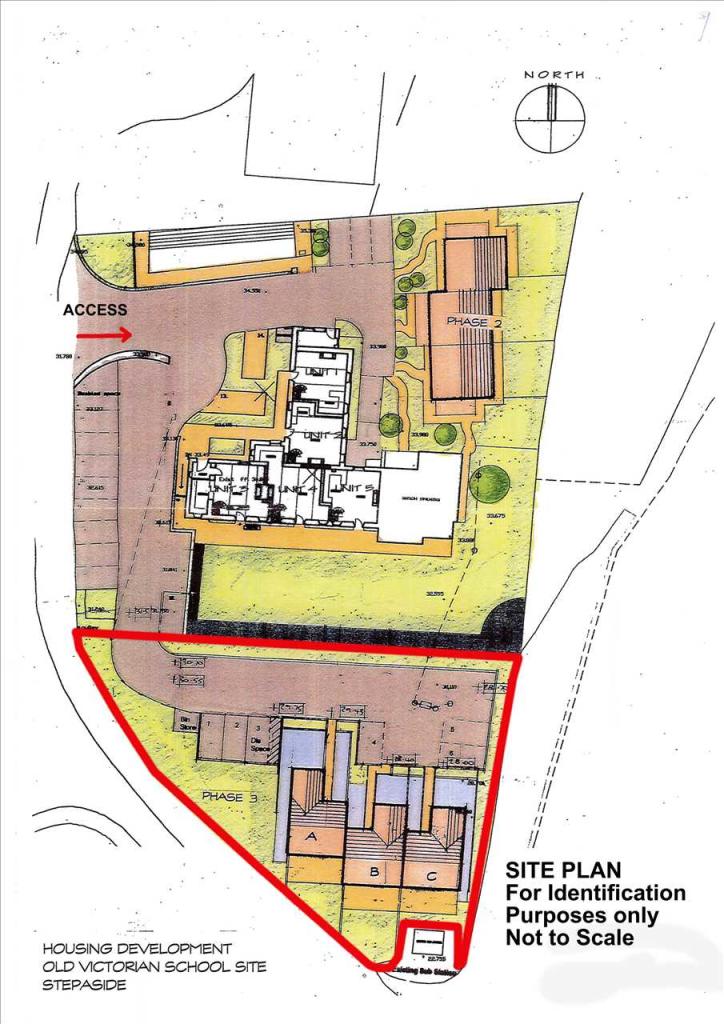
**Standout Features:**
- South-facing, sloping site measuring approx. 101ft x 95ft
- Existing planning consent for three terraced houses (2011 reference: 10/1309/PA)
- Versatile development potential for one large house or two detached houses
- Mains water and electricity available; private drainage system in place
- Located near the Pembrokeshire Coast National Park
- Tranquil rural setting with easy access to Kilgetty and Wiseman's Bridge (1-2 miles away)
This sizable development site in Stepaside presents a unique opportunity for developers and self-builders alike. The generous plot size and existing permission for three terraced houses allow for creative flexibility, whether you envision a single grand residence or two detached homes. Mains utilities are accessible, and the gentle slope enhances the site's charm and potential. Positioned just a stone's throw from the picturesque Pembrokeshire Coast National Park, the land offers a peaceful retreat while remaining conveniently connected to nearby amenities.
Don’t miss this rare chance in a desirable area—secure your piece of the countryside and start planning your dream project today!
Land for sale in Development Site, Sageston, Tenby, SA70 — £525,000 • 1 bed • 1 bath
Land for sale in Laugharne, Carmarthen, SA33 — £275,000 • 1 bed • 1 bath
Land for sale in Stepaside, Narberth, SA67 — £100,000 • 1 bed • 1 bath
3 bedroom terraced house for sale in Brook Cottages, Stepaside, Narberth, Pembrokeshire, SA67 — £180,000 • 3 bed • 1 bath • 1034 ft²
5 bedroom detached house for sale in Kilgetty Lane, Stepaside, Narberth, SA67 — £485,000 • 5 bed • 3 bath • 1728 ft²
Plot for sale in Carmarthen Road, Kilgetty, SA68 — £90,000 • 1 bed • 1 bath










