Detached family home with parking and low-maintenance garden in Upper Colwyn Bay.
Detached three-bedroom home with traditional brick exterior
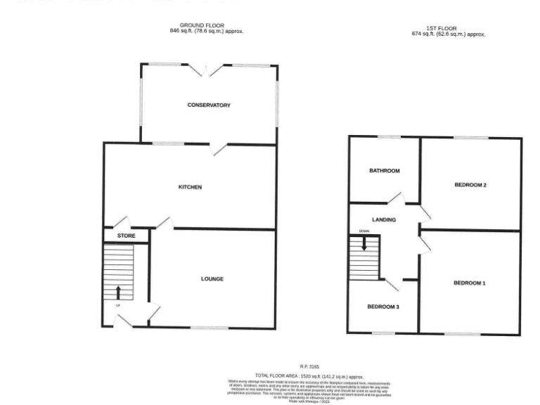
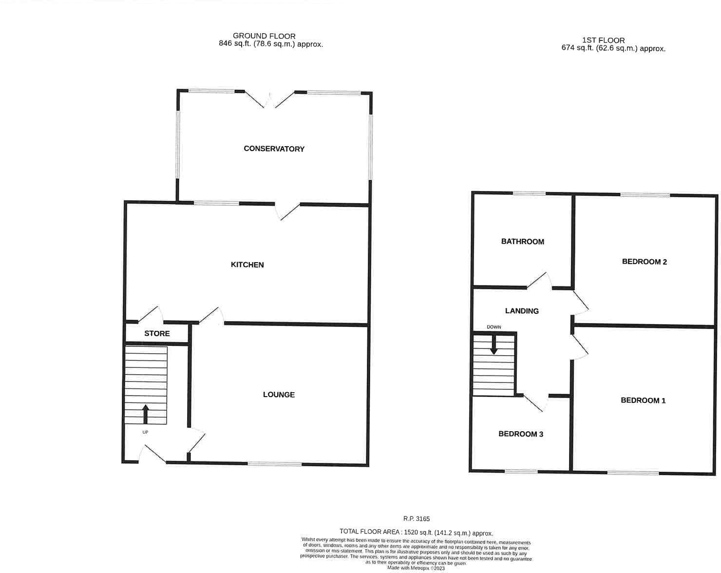
Set on a quiet street in Upper Colwyn Bay, this three-bedroom detached house offers a practical family layout and substantial off-road parking. The entrance hall leads to a comfortable lounge, a kitchen/diner and a conservatory with French doors opening onto a low-maintenance rear garden — a straightforward outdoor space for children and pets.
Upstairs are three bedrooms and a single family bathroom. The property’s traditional brick exterior and mid-century fireplace in the living room give it solid bones and subtle character. Fast broadband and very low local crime make it suitable for everyday family life and remote working.
Buyers should note the small plot size and the single bathroom — a potential limitation for larger families. The house appears well kept but may benefit from some updating to suit modern tastes and to maximise future resale or rental value. The surrounding area is classified as very deprived, which may affect long-term capital growth and local services.
Overall, this detached home is a practical purchase for a family seeking space, parking and easy maintenance in a convenient town location close to schools and amenities. Viewing will make the layout and potential clear.
3 bedroom detached house for sale in Troon Way, Colwyn Bay, Conwy, LL29 — £249,950 • 3 bed • 2 bath • 1009 ft²
3 bedroom detached house for sale in Bryn Y Mor, Colwyn Bay, LL29 — £285,000 • 3 bed • 2 bath • 1195 ft²
3 bedroom detached house for sale in Brooklands, Colwyn Bay, Conwy, LL29 — £269,950 • 3 bed • 2 bath • 1378 ft²
3 bedroom detached house for sale in Troon Way, Colwyn Bay, Conwy, LL29 — £275,000 • 3 bed • 2 bath • 1151 ft²
3 bedroom semi-detached house for sale in Bryn Cadno, Colwyn Bay, Conwy, LL29 — £220,000 • 3 bed • 1 bath • 828 ft²
3 bedroom semi-detached house for sale in Bryn Celyn, Upper Colwyn Bay, LL29 — £219,950 • 3 bed • 1 bath






















































































