**Standout Features:**
- Chain free with off-road parking
- Newly renovated throughout
- Three spacious bedrooms and two bathrooms
- Modern kitchen with integrated appliances
- Large rear garden perfect for families
- Located in a friendly community with low crime rates
**Potential Downsides:**
- Area classified as deprived with slower broadband speeds
- Average-sized property in a small town with limited amenities
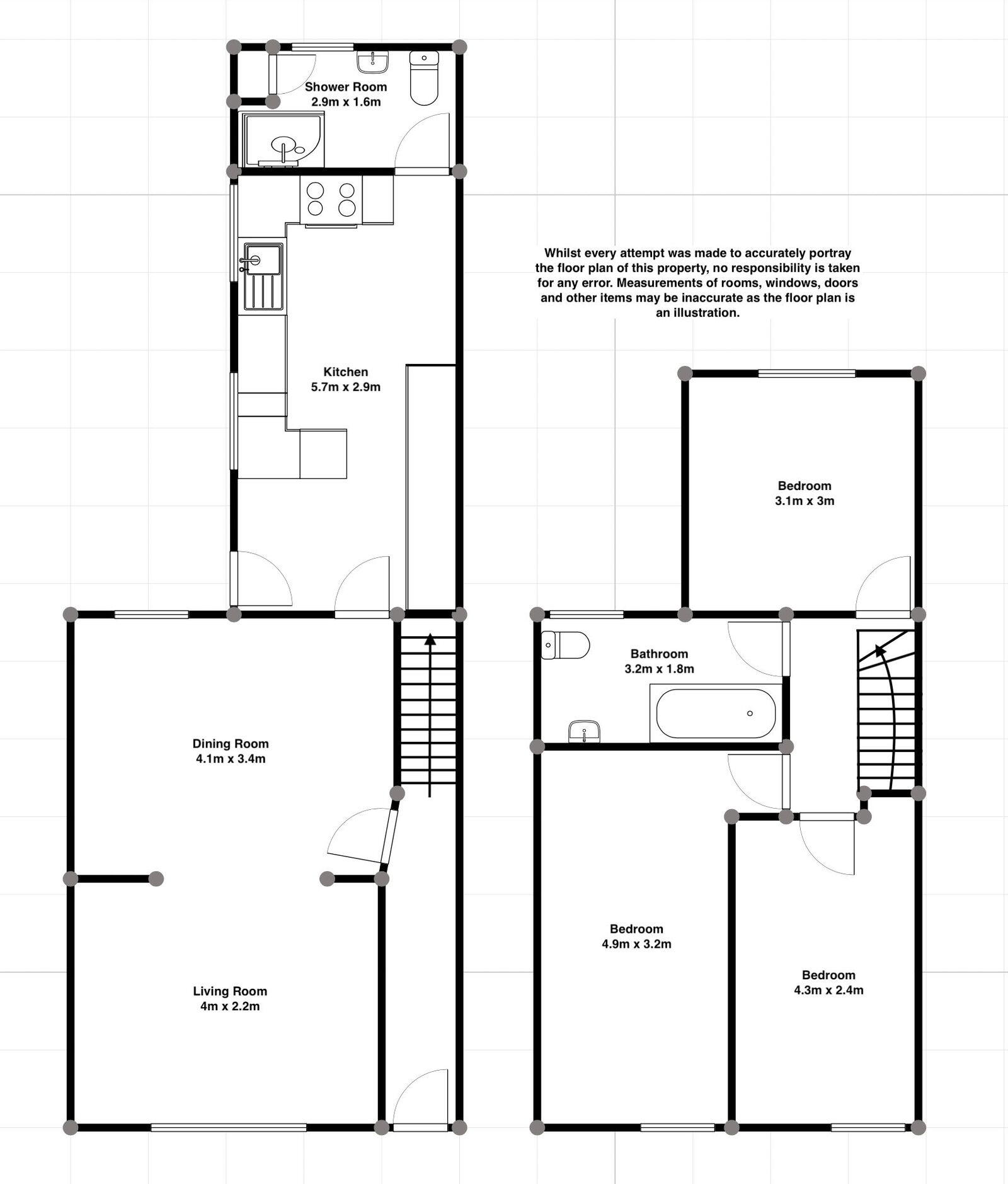
Welcome to your dream home in the charming community of Aberfan! This beautifully refurbished three-bedroom semi-detached property is perfect for first-time buyers or families seeking a comfortable and modern living space. Boasting a contemporary kitchen equipped with sleek storage solutions and integrated appliances, this home combines style and functionality. The inviting ground floor features two light-filled reception rooms, a convenience of a ground floor shower room, and under-house storage that adds to the home’s practicality.
Upstairs, you'll discover three generously sized bedrooms, all newly carpeted for a cozy feel, along with a bright and modern family bathroom. The expansive rear garden is an outstanding highlight, offering ample space for children to play or for hosting loved ones during summer barbecues. Enjoy the peace of off-road parking and a serene setting in the picturesque Taff Valley, with quick access to Merthyr Tydfil's amenities and excellent transport links for easy travel to Cardiff and beyond.
Don’t miss out on this incredible home that combines modern living with comfort and convenience in an up-and-coming area. It's ready for you to move in and make it your own!
3 bedroom semi-detached house for sale in Aberfan Road, Aberfan, Merthyr Tydfil, CF48 — £124,995 • 3 bed • 1 bath
3 bedroom terraced house for sale in Thomas Street, Aberfan, Merthyr Tydfil, CF48 — £99,995 • 3 bed • 1 bath • 700 ft²
3 bedroom end of terrace house for sale in Wingfield Street, Aberfan, Merthyr Tydfil, CF48 — £155,000 • 3 bed • 2 bath
2 bedroom terraced house for sale in Cottrell Street, Merthyr Tydfil, CF48 — £120,000 • 2 bed • 1 bath • 1314 ft²
3 bedroom semi-detached house for sale in Tanybryn, Ferndale, Maerdy CF43 — £140,000 • 3 bed • 1 bath • 672 ft²
3 bedroom terraced house for sale in Bridge Street, Aberfan, Merthyr Tydfil, CF48 — £120,000 • 3 bed • 2 bath • 1458 ft²














































































