PA10 2DB - 1 bedroom flat for sale in Old School Square, Kilbarchan, P…

View on Property Piper

1 bedroom flat for sale in Old School Square, Kilbarchan, PA10

Summary - 10 Old School Square, Kilbarchan, PA10 2DB PA10 2DB

1 bed 1 bath Flat

**Standout Features:**
- One-bedroom ground floor flat in Old School Square development
- Spacious 17'11 lounge with dual aspect windows
- Modern kitchen with integrated appliances
- Fitted wardrobes in the bedroom for ample storage
- Stylish shower room with a contemporary finish
- Allocated off-street parking and shared garden access
- Gas central heating and double glazing
- Fast broadband and excellent mobile signal

**Potential Downsides:**
- Located in an area classified as "very deprived"
- May require consideration regarding local amenities

Immerse yourself in the charming lifestyle of Kilbarchan village with this modern one-bedroom flat at Old School Square. Boasting a bright and spacious lounge, complete with dual aspect windows, the property feels inviting and perfect for both relaxation and entertaining. The well-equipped kitchen and stylish shower room reflects quality living standards, making it a superb choice for first-time buyers or those looking to downsize into a low-maintenance home.

The flat benefits from communal gardens and an allocated parking space, enhancing its appeal for those seeking comfort and community. Positioned conveniently for easy access to local amenities and excellent transport links to nearby Paisley and Glasgow, this property offers both tranquility and connectivity. However, buyers should note the surrounding area's classification as "very deprived," which may influence lifestyle choices and future investment potential. An energy efficiency rating of C and properties priced at £115,000 reinforce this flat's attractiveness, making it a smart investment in a serene village setting. Don’t miss your chance to own this beautiful space in a friendly neighborhood!

Property Details

Image Descriptions

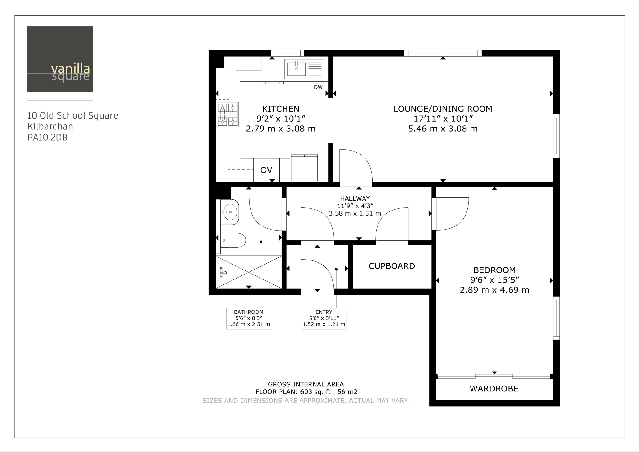
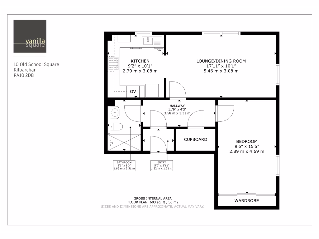
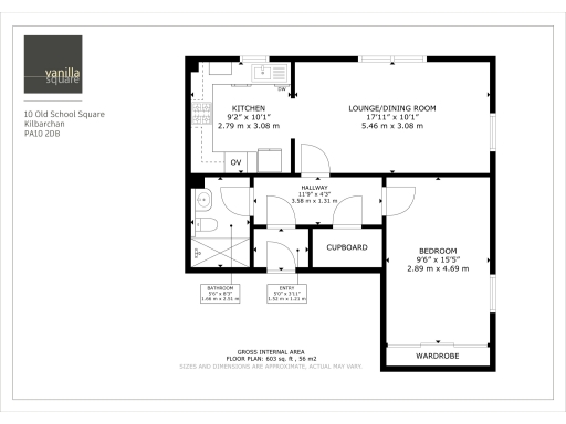
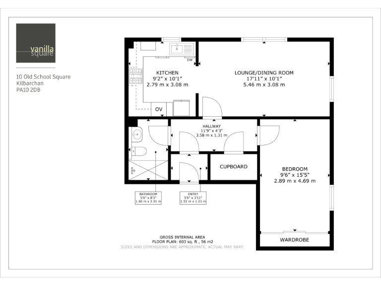
Floorplan Description

Rooms

Textual Property Features

Detected Visual Features

Nearest Bars And Restaurants

,,,,}

Nearest General Shops

,,}

Nearest Grocery shops

,,}

Nearest Supermarkets

,,}

Nearest Religious buildings

,,}

Nearest Medical buildings

,,,}

Nearest Airports

,}

Nearest Leisure Facilities

,,,,}

Nearest Tourist attractions

,,}

Nearest Train stations

,,,,}

Nearest Bus stations and stops

,,,,}

Nearest Hotels

,,}

Tags

Local Market Stats

Similar Properties

Meta

High Res Images

Compatible Images

Low res Images

Thumbnails

Raw Images

High Res Floorplan Images

Compatible Floorplan Images

Low res Floorplan Images

FloorplanImages Thumbnail

Raw Floorplan Images