Bay-fronted starter home close to Southsea seafront and local amenities.
Chain free freehold Victorian mid-terrace
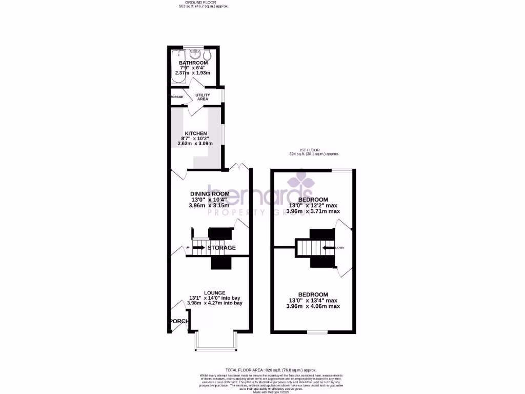
A classic two-bedroom Victorian mid-terrace in popular Southsea, offered chain free and freehold. The house provides two reception rooms, a ground-floor bathroom and a compact kitchen, arranged over two storeys — a straightforward layout that suits first-time buyers and buy-to-let investors alike. The bay-fronted lounge brings natural light; both bedrooms are double-sized for this property type.
The plot is small with a forecourt and likely a modest rear yard. Services are standard: mains gas central heating to radiators, double glazing (install date unknown), fast broadband and excellent mobile signal. Local amenities, schools rated Good, and easy access to central Southsea and the seafront add practical appeal.
Cosmetically the property presents opportunity — marketing images suggest tidy, neutral decor in parts, while external notes indicate some renovation or updating may be needed in places. Buyers should budget for potential modernisation works and confirm the condition of windows, kitchen fittings and services on inspection. No flooding risk, very low local crime and a low council tax band help running costs.
2 bedroom terraced house for sale in Esslemont Road, Southsea, PO4 — £240,000 • 2 bed • 1 bath • 691 ft²
2 bedroom terraced house for sale in Sutherland Road, Southsea, PO4 — £240,000 • 2 bed • 1 bath • 646 ft²
2 bedroom house for sale in Pleasant Road, Southsea, PO4 — £270,000 • 2 bed • 1 bath • 685 ft²
2 bedroom end of terrace house for sale in Bramble Road, Southsea, PO4 — £230,000 • 2 bed • 1 bath • 624 ft²
2 bedroom terraced house for sale in Esslemont Road, Southsea, PO4 — £210,000 • 2 bed • 1 bath • 668 ft²
2 bedroom terraced house for sale in Wainscott Road, Southsea, Hampshire, PO4 — £230,000 • 2 bed • 1 bath • 700 ft²


































































