**Standout Features:**
- Luxury one-bedroom retirement apartment
- Town center location within the desirable Finham Court development
- Residents lounge, laundry room, and attractive communal gardens
- Off-street parking available
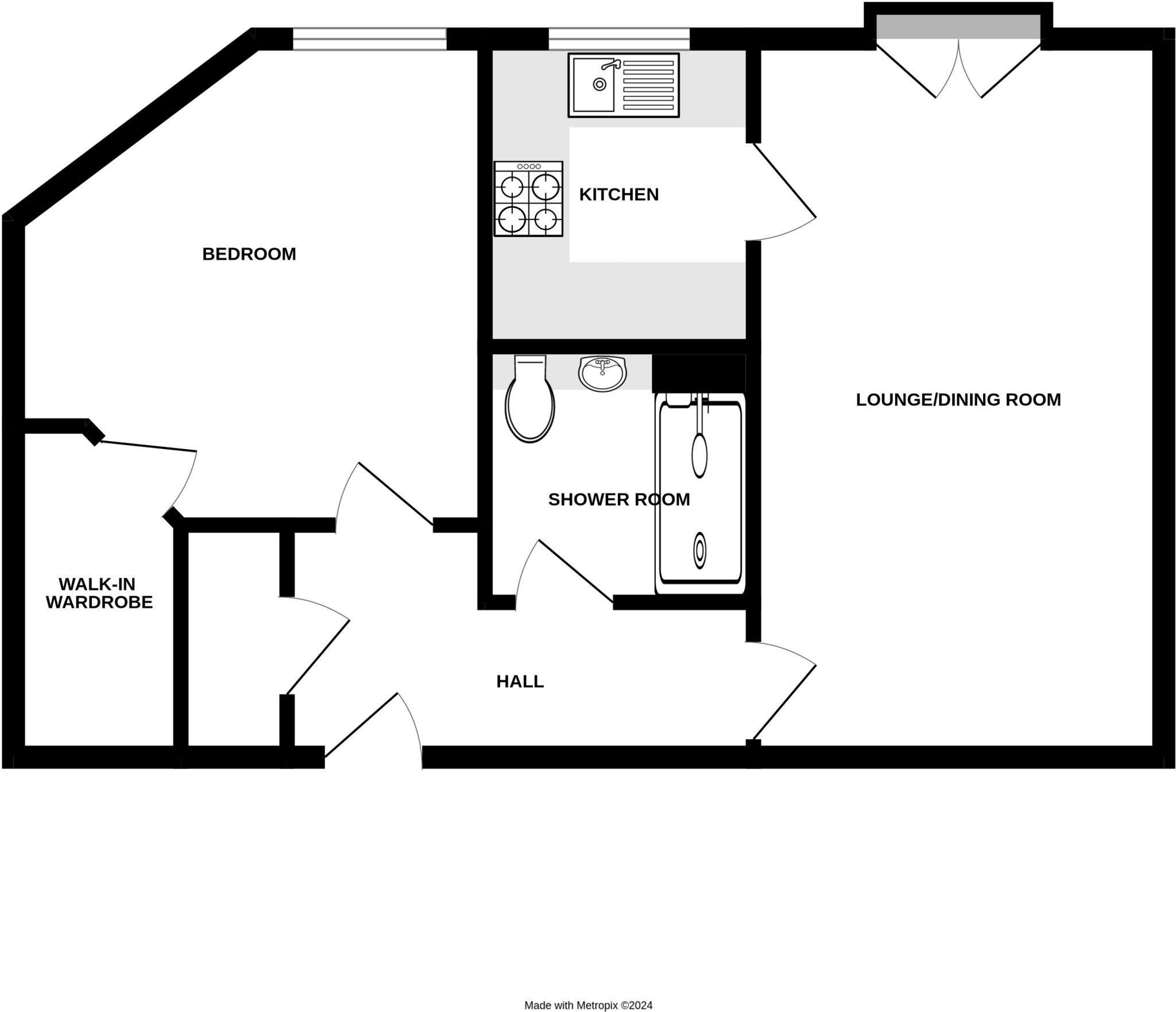
- Spacious double bedroom with walk-in wardrobe
**Property Details:**
Discover luxury living in this modern one-bedroom retirement apartment, ideally situated in the heart of the town center. This bright space boasts a charming living room with a feature fireplace and a Juliet balcony overlooking the beautifully landscaped communal gardens. The contemporary kitchen is equipped with integrated appliances, perfect for preparing meals in a comfortable setting.
The generously sized double bedroom features a walk-in wardrobe, providing ample storage space. The stylish, fully-tiled bathroom includes a walk-in shower for easy access. Residents benefit from an engaging community atmosphere, complete with a lounge for social gatherings and a conveniently located laundry room.
Although the apartment is chain-free, note the service charge of £4,040.87 per year and a ground rent of £425, reflecting its affluent location. With 116 years remaining on the lease, this property promises a secure and comfortable living environment. Don't miss this opportunity to claim your spot in a sought-after retirement development and enjoy a lifestyle of comfort, convenience, and community.
1 bedroom apartment for sale in Finham Court, Waverley Road, Kenilworth, CV8 — £125,000 • 1 bed • 1 bath • 535 ft²
1 bedroom apartment for sale in Southbank Road, Kenilworth, Warwickshire, CV8 — £95,000 • 1 bed • 1 bath • 542 ft²
1 bedroom retirement property for sale in Waverley Road, Kenilworth, CV8 — £130,000 • 1 bed • 1 bath • 603 ft²
1 bedroom apartment for sale in Wilton Court, Southbank Road, Kenilworth, CV8 — £150,000 • 1 bed • 1 bath • 440 ft²
1 bedroom apartment for sale in Wilton Court, Southbank Road, CV8 — £99,000 • 1 bed • 1 bath • 514 ft²
1 bedroom retirement property for sale in Waverley Road, Kenilworth, CV8 — £135,000 • 1 bed • 1 bath • 547 ft²






























































