Charming two-bedroom Victorian home in Marsden centre — ideal for first-time buyers or holiday lets.
Chain free and freehold ownership
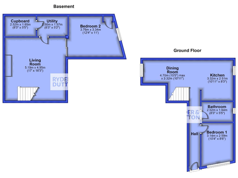
This Victorian two-bedroom terraced house in the heart of Marsden comes to market chain free and with proven rental history — a practical choice for first-time buyers, buy-to-let investors or a compact holiday let. The property occupies a corner position with traditional stone facade, a modernised kitchen and a generous reception room with a feature stone chimney breast.
Layout is flexible: a double bedroom and dining kitchen sit at ground-floor level, while the lower ground floor houses a sizeable living room (no window), second double bedroom with restricted head height and a useful utility with a second WC and built-in storage. The compact plot is easy to manage and the house benefits from double glazing, mains gas central heating and an EPC rating of C.
Location is a key strength — short walk to Marsden village centre, local shops, cafés and regular rail links to Manchester and Leeds. Nearby schools and a growing tourism scene add appeal for families, holiday-let owners and commuters.
Buyers should note several material points: the lower ground living room has no window, the lower bedroom has reduced head height, and the original stone walls are likely uninsulated (typical of pre-1900 construction). There are some signs of possible damp to investigate and no information on glazing installation dates. The property is sold freehold with very low council tax (Band A).
2 bedroom terraced house for sale in Carrs Street, Marsden, HD7 — £210,000 • 2 bed • 1 bath • 786 ft²
2 bedroom terraced house for sale in Mount Road, Marsden, Huddersfield, West Yorkshire, HD7 — £165,000 • 2 bed • 1 bath • 648 ft²
2 bedroom terraced house for sale in Royd Street, Slaithwaite, Huddersfield, West Yorkshire, HD7 — £160,000 • 2 bed • 1 bath • 558 ft²
2 bedroom terraced house for sale in Shaw Terrace, Marsden, Huddersfield, HD7 — £200,000 • 2 bed • 1 bath • 713 ft²
2 bedroom end of terrace house for sale in Manchester Road, Slaithwaite, Huddersfield, West Yorkshire, HD7 — £130,000 • 2 bed • 1 bath • 501 ft²
2 bedroom terraced house for sale in Wellington Street, Lindley, Huddersfield, HD3 — £150,000 • 2 bed • 1 bath • 915 ft²






























































