SK6 8DU - 4 bedroom detached house for sale in Dovedale Close, High L…

View on Property Piper

4 bedroom detached house for sale in Dovedale Close, High Lane, Stockport SK6 8DU, SK6

Summary - 1 Dovedale Close, High Lane SK6 8DU

4 bed 1 bath Detached

**Standout Features:**
- Newly renovated detached house with 4 bedrooms
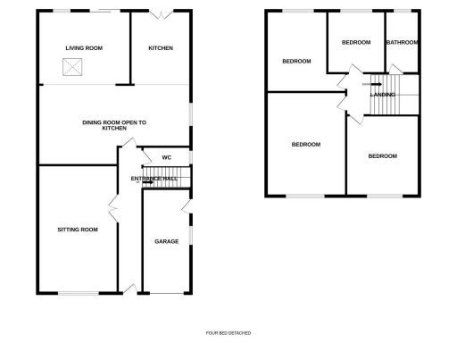
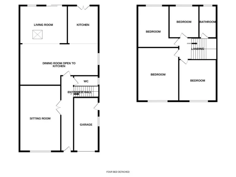
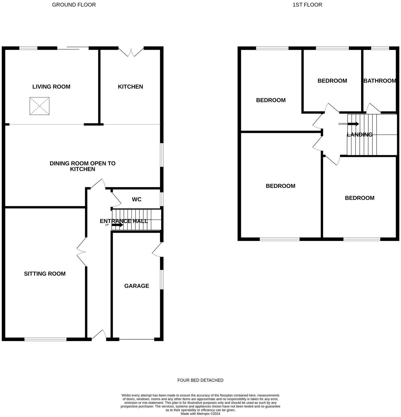
- Spacious 1,734 sq ft living space
- Open-plan living and dining areas
- Modern kitchen with Stoves range cooker
- Integral garage and ample off-street parking
- Well-enclosed, lawned rear garden with patio
- Located in an affluent community with excellent schools nearby
- Chain-free sale

**Concerns:**
- Council tax band is expensive (Band F)
- Average mobile signal

Discover your dream home in this stunning, recently renovated four-bedroom detached house, ideally located in the affluent SK6 district, just steps away from High Lane Primary School and the picturesque Macclesfield Canal. This modern family home offers 1,734 sq ft of thoughtfully designed living space featuring an open-plan layout that seamlessly connects the dining room, living room, and a high-end kitchen equipped with a Stoves range cooker—perfect for entertaining and family gatherings.

With a well-enclosed garden and a spacious driveway capable of accommodating several vehicles, this property boasts both comfort and convenience. Enjoy the peace of mind offered by a low-crime vicinity and nearby amenities, including parks, shops, and recreational facilities. Ideal for families or investors seeking rental potential, this home blends modern living with a touch of suburban charm.

Don’t miss the chance to make this exceptional property yours—schedule a viewing today!

Property Details

Brochure Descriptions

Image Descriptions

Floorplan Description

Rooms

Textual Property Features

Detected Visual Features

EPC Details

Nearby Schools

Nearest Bars And Restaurants

,,,,}

Nearest General Shops

,,}

Nearest Grocery shops

,,}

Nearest Supermarkets

,,}

Nearest Religious buildings

,,}

Nearest Medical buildings

,,,}

Nearest Airports

}

Nearest Leisure Facilities

,,,,}

Nearest Tourist attractions

,,}

Nearest Train stations

,,,,}

Nearest Bus stations and stops

,,,,}

Nearest Hotels

,,}

Tags

Local Market Stats

AirBnB Data

Similar Properties

Meta

High Res Images

Compatible Images

Low res Images

Thumbnails

Raw Images

High Res Floorplan Images

Compatible Floorplan Images

Low res Floorplan Images

FloorplanImages Thumbnail

Raw Floorplan Images