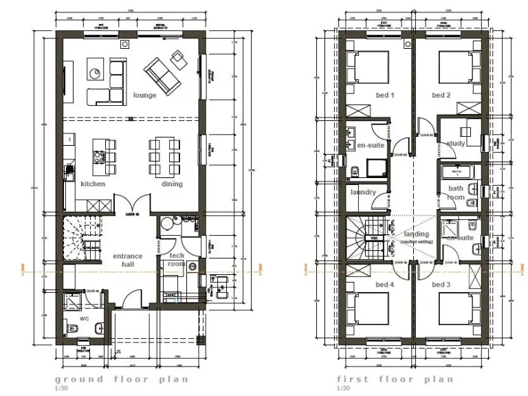
Detached custom-build approx. 2,000 sq ft with large gardens and river frontage
Planning permission already approved; buyer can personalise design and finishes
Fishing rights included; direct access to wildlife area and river
High flood risk — mitigation, insurance and specialist advice required
Not yet under construction; build starts after land contract exchange
Solar panels available but costed as an optional extra
Off-street driveway parking for two; management company for communal areas
Broadband slow and mobile signal only average — affects home working
This is a rare opportunity to buy a custom-build detached home on a riverside plot in central Frome. The homes are new-build, approx. 2,000 sq ft, with large rear gardens extending to a wildlife area and direct river frontage with fishing rights — ideal for families who value outdoor space and wildlife.
Buyers can agree finishes and layouts before construction begins, giving genuine design freedom and a fixed-price build. The scheme is backed by new-build warranties (10-year) and a 20-year structural warranty, and the developer and manufacturer promise efficient off-site construction and energy-efficient specifications (solar provision available at extra cost).
Important practical points are straightforward: properties are not yet under construction and works start only after contract exchange, so buyers must be prepared to commit early to secure custom options. The site lies within a high flood-risk area; flood risk will need careful consideration, insurance, and possible mitigation measures. Broadband speeds are reported slow and mobile signal average — relevant for home working.
There will be a residents’ management company for communal areas; buyers should expect ongoing management responsibilities and possible fees. Overall, this is a strong proposition for those seeking a sizeable, efficient family home in a very affluent, low-crime town location, close to the train station and town centre, but it carries material considerations around flood risk, timing and connectivity.



















































