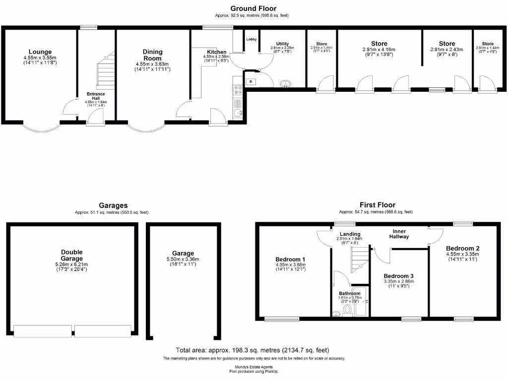
**Standout Features:**
- Large end-of-terrace house offering substantial living space.
- Three spacious bedrooms and a well-proportioned bathroom.
- Two inviting reception rooms, kitchen, and utility room.
- Generous courtyard with a double garage, single garage, and various outbuildings, all with redevelopment potential subject to planning permissions.
- Long private driveway provides ample parking.
- Prime location within walking distance to local shops, amenities, and the train station.
- Council Tax Band - C, with reasonable maintenance costs.
**Property Summary:**
Discover a rare opportunity to own this large end-of-terrace home located in the heart of Market Rasen. Once two separate properties, this spacious dwelling offers an expansive layout featuring three bedrooms, two reception rooms, and a utility area, perfect for families or those seeking extra room for various activities. While the home requires some modernisation, it holds great potential for those looking to add value and personalize their space.
Situated within a vibrant community, you're just a short walk from local shops, schools, and excellent transport links, making it an ideal spot for first-time buyers or investors. The property boasts extensive outdoor space, including a long, private driveway leading to a courtyard with multiple garages and outbuildings—ideal for a workshop or studio, with room for future development. Though it presents a great canvas for transformation, please note the need for renovations to bring it up to your desired standards. Don't miss this chance to create your perfect home in a charming market town—properties like this won't last long!
3 bedroom end of terrace house for sale in Dear Street, Market Rasen, LN8 — £295,000 • 3 bed • 1 bath • 2218 ft²
3 bedroom semi-detached house for sale in Lammas Leas Road, Market Rasen, LN8 — £169,950 • 3 bed • 1 bath • 889 ft²
2 bedroom end of terrace house for sale in King Street, Market Rasen, LN8 — £119,950 • 2 bed • 1 bath • 790 ft²
3 bedroom end of terrace house for sale in Gordon Field, Market Rasen, LN8 — £169,950 • 3 bed • 1 bath • 964 ft²
3 bedroom semi-detached house for sale in John Street, Market Rasen, LN8 — £150,000 • 3 bed • 1 bath • 769 ft²
4 bedroom detached house for sale in Caistor Road, Market Rasen, LN8 — £265,000 • 4 bed • 2 bath • 1800 ft²










































































