Deep private garden and double garage with scope to modernise and extend.
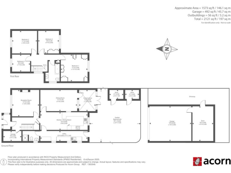
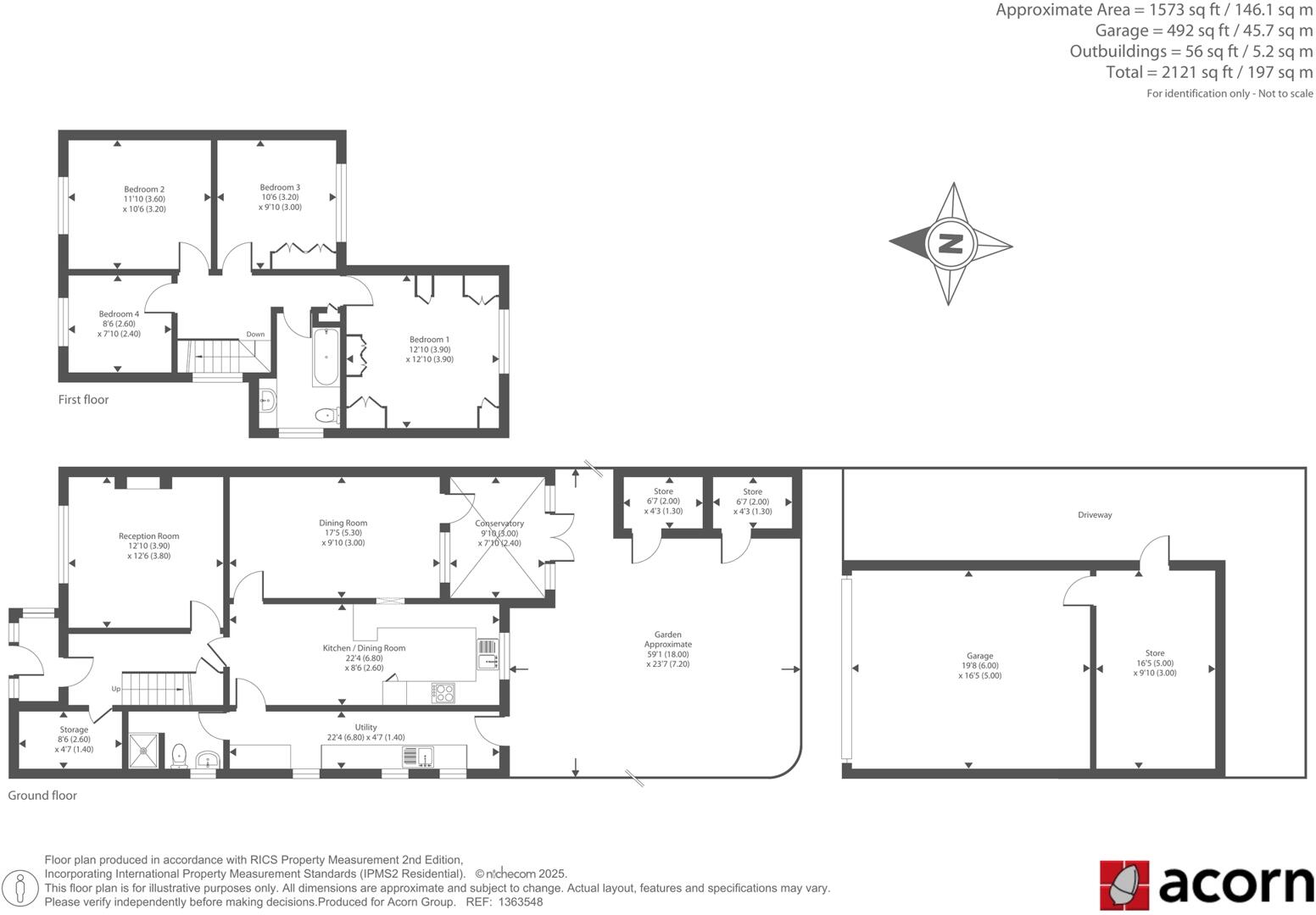
Four bedrooms with spacious living areas and a conservatory
Set back on Broad Lane, this 1950s semi-detached house offers four bedrooms, generous living space and a conservatory overlooking a long, private garden. The plot is a standout feature — a deep rear garden with potential for future development subject to planning — and a double garage with electric and water supply provides useful storage or workshop space.
Internally the home is clean and spacious with bright rooms and traditional features such as a fireplace. Practical comforts include mains gas central heating, double glazing and off-street parking. Local schools (including two grammar schools and an Outstanding academy) and everyday amenities are close by, making the location well suited to families.
There are important maintenance and efficiency considerations. The property has an EPC rating of D, solid brick walls likely without insulation, and some dated fixtures and signs of wear (including areas of overgrown foliage and a driveway that needs attention). The living room notes potential damp and the interior will benefit from updating to improve energy performance and comfort.
This freehold house will suit buyers seeking a family home with scope to personalise and add value through refurbishment. It also offers development potential in the garden for those who wish to explore planning options. Council tax sits at the higher band for the area and should be factored into ownership costs.
4 bedroom semi-detached house for sale in Whitehead Close, Wilmington, DA2 — £525,000 • 4 bed • 1 bath • 1288 ft²
4 bedroom link detached house for sale in Monks Orchard, Wilmington, DA1 — £525,000 • 4 bed • 2 bath • 1735 ft²
4 bedroom detached house for sale in Brewers Field, Dartford, Kent, DA2 — £660,000 • 4 bed • 2 bath • 1113 ft²
3 bedroom semi-detached house for sale in Stock Lane, Dartford, Kent, DA2 — £475,000 • 3 bed • 1 bath • 966 ft²
4 bedroom detached house for sale in Broad Lane, Wilmington, DA2 — £525,000 • 4 bed • 1 bath • 1197 ft²
5 bedroom detached house for sale in Church Field, Wilmington, DA2 — £1,400,000 • 5 bed • 3 bath • 3600 ft²


































































































