Multi-unit town centre asset with strong conversion and parking potential.
Six bedrooms across mixed residential and storage accommodation
Four garages plus large outbuildings with conversion potential
Parking for approximately 20–30 vehicles on-site
Stone-built historic fabric; external condition generally sound
Vacant units; immediate refurbishment required for residential lettings
Area classed very deprived — strong rental demand, higher management needs
Possible damp issues and likely upgrade costs (roof, windows, DPC)
Buyers Premium applies to the sale process
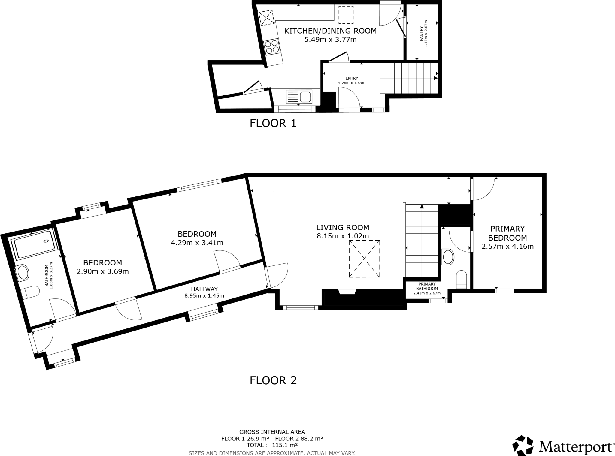
A substantial stone-built, mixed-use portfolio in Saltoun Square offering clear income and redevelopment potential for an investor or developer. The three-storey traditional building currently provides six bedrooms (three active, three used as storage), extensive garage and storage space, and an enclosed communal yard with parking for around 20–30 vehicles. Its town-centre location supports rental demand from local workers and short-stay visitors, making it suitable for long-term lets or conversion to multiple flats/Airbnb subject to consent.
The fabric appears sound externally but the property is described as a fixer-upper: refurbishment, modernisation and possible damp mitigation are likely to be required to reach full residential letting standards. Large outbuildings and garage units present scope to add lettable units or convert into flats (planning and building control consents required). The advertised income and gross yield are investor-focused; prospective buyers should treat the income projections as indicative and verify via tenancy schedules and the Let Property Pack.
Important practical points: the sale is freehold and units are vacant, with excellent mobile signal and average broadband. The area is classified as very deprived and transitional; that supports rental demand but also warrants careful tenant and management planning. Material concerns include likely refurbishment costs, potential damp, limited private outdoor amenity, and a Buyers Premium noted in the sale terms. Carry out an in-person inspection, obtain internal plans, EPC, clear title and rental history before bidding or contract.
Overall this is a hands-on investment for a buyer seeking a value-add, multi-unit town-centre asset with conversion upside and strong parking/storage benefits. It will suit investors or developers ready to manage refurbishment and consenting to unlock rental or holiday-let income.
Commercial property for sale in Broad Street, Fraserburgh, AB43 — £300,000 • 7 bed • 5 bath • 2465 ft²
6 bedroom maisonette for sale in 49B Barrasgate Road, Fraserburgh, AB43 9DQ, AB43 — £30,000 • 6 bed • 1 bath
3 bedroom end of terrace house for sale in Mossview, Fraserburgh, Aberdeenshire, AB43 — £90,000 • 3 bed • 1 bath • 797 ft²
Commercial property for sale in 65 Frithside Street, Fraserburgh, Aberdeenshire, AB43 9JA, AB43 — £24,000 • 1 bed • 1 bath • 421 ft²
8 bedroom hotel for sale in Smiddyhill Road, Fraserburgh, Fraserburgh, Aberdeenshire, AB43 — £650,000 • 8 bed • 1 bath • 8237 ft²
2 bedroom flat for sale in Grattan Place, Fraserburgh, AB43 9SD, AB43 — £145,000 • 2 bed • 1 bath • 947 ft²


















































































































