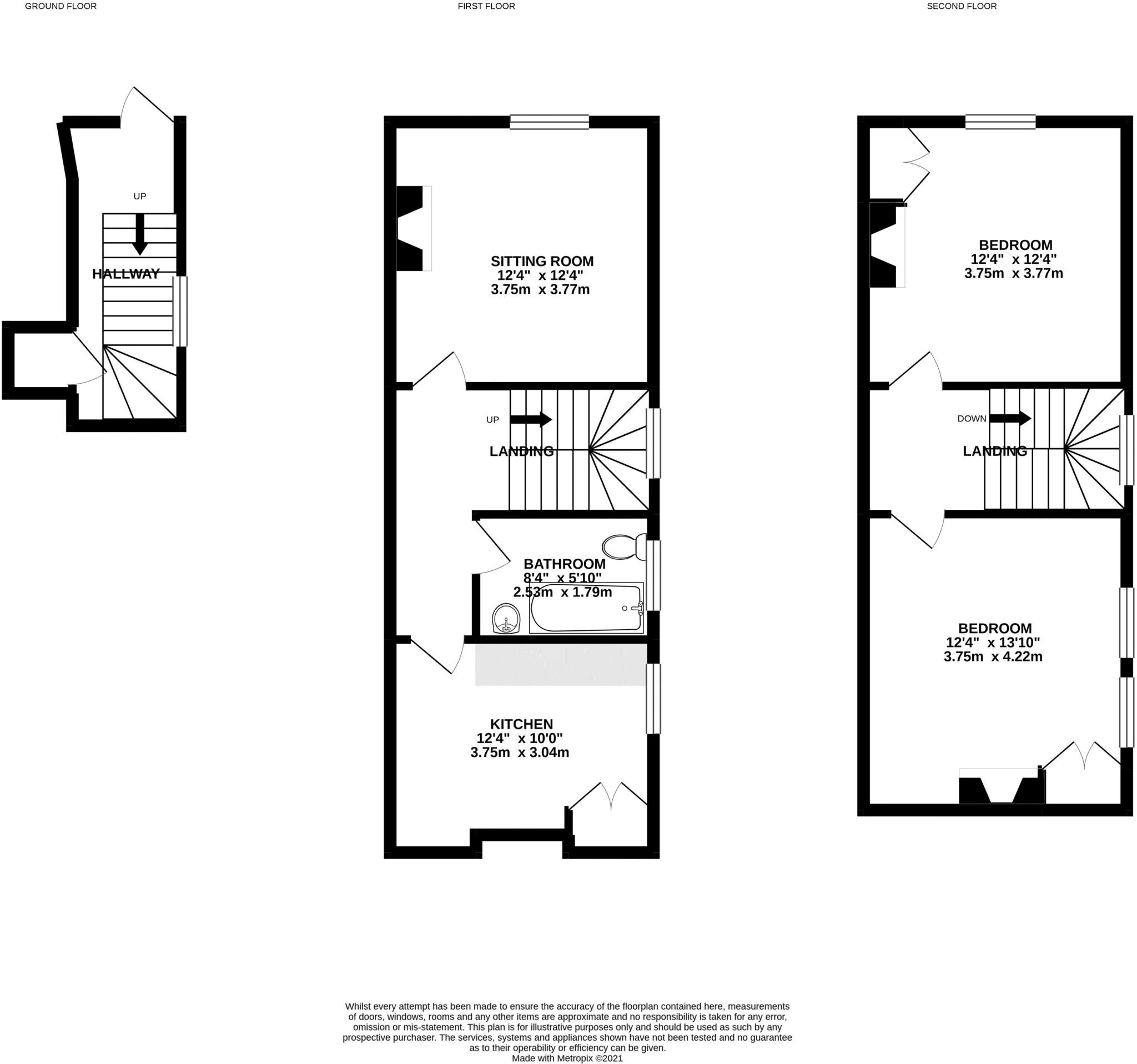
**Standout Features:**
- Spacious two-bedroom maisonette arranged over three floors
- Modern fitted kitchen and bright, inviting lounge
- Close proximity to the beach and local amenities
- Located in the heart of Cromer with good transport links
- Council Tax Band A and low service charge of £250 per annum
**Notable Concerns:**
- 83 years remaining on the lease, requiring prompt renewal
- Average condition with older Victorian construction; potential insulation improvements needed
Step into comfort with this charming two-bedroom maisonette nestled in the vibrant heart of Cromer. This property, spread across three levels, boasts a modern fitted kitchen and a bright lounge adorned with stylish décor, making it an ideal space for relaxation or entertaining. The two generously sized bedrooms on the upper floor offer a serene retreat, while the family bathroom and storage make daily living a breeze.
Enjoy the convenience of being just a stone's throw from the beach and surrounded by an array of local shops, restaurants, and essential amenities. Perfect for first-time buyers or investors, this home represents an excellent opportunity to own a slice of coastal charm. However, buyers should note the 83-year lease term requiring renewal, presenting a minor consideration for future planning. Don't miss your chance to make this delightful property yours—opportunities like this are rare in such a sought-after location!
2 bedroom maisonette for sale in Bond Street, Cromer, Norfolk, NR27 — £185,000 • 2 bed • 1 bath • 569 ft²
2 bedroom house for sale in Corner Street, Cromer, NR27 — £250,000 • 2 bed • 1 bath • 883 ft²
2 bedroom flat for sale in Prince Of Wales Road, Cromer, NR27 — £140,000 • 2 bed • 1 bath • 665 ft²
2 bedroom flat for sale in Bond Street, Cromer, Norfolk, NR27 — £120,000 • 2 bed • 1 bath • 645 ft²
2 bedroom flat for sale in Brunswick Terrace, The Gangway, Cromer, Norfolk, NR27 — £175,000 • 2 bed • 1 bath • 694 ft²
2 bedroom flat for sale in New Parade, Cromer, Norfolk, NR27 — £120,000 • 2 bed • 1 bath • 784 ft²






































