Substantial plot with studio and garage, ideal for renovation buyers.
Large west-facing garden with mature planting and privacy
Art studio/hobby room and separate workshop included
Garage plus wide in-and-out driveway for several vehicles
Touring caravan included with power and lighting connected
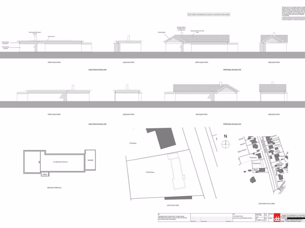
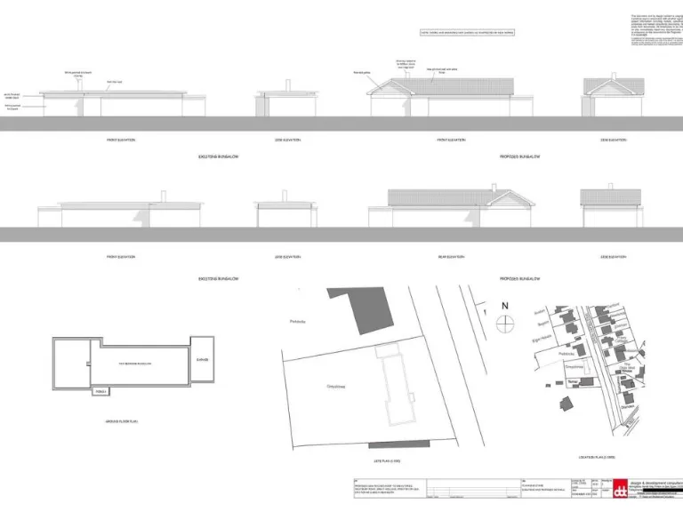
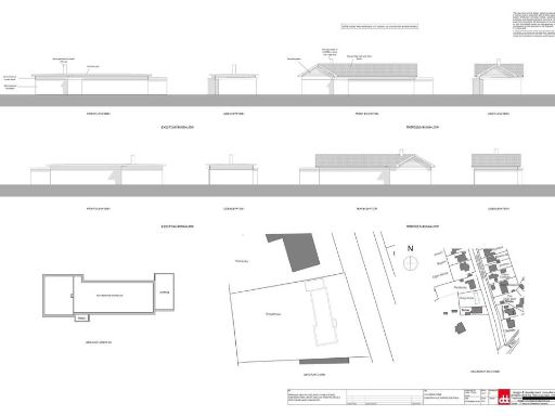
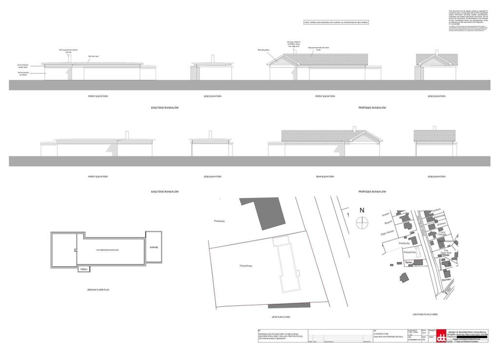
Planning passed to replace flat roof with a pitched roof
EPC rating G — significant energy upgrades likely required
Cavity walls as-built with no confirmed insulation (assumed)
Built 1950s–60s; scope for refurbishment and value-add
Set back on a quiet private lane in Great Holland, this two-bedroom detached bungalow sits on a substantial west-facing plot that will appeal to buyers wanting outdoor space and privacy. The mature garden, separate art studio/hobby room and garage provide flexible space for hobbies, home working or storage. A touring caravan is included and there is a wide in-and-out shingled driveway with room for several cars.
The house has mid‑century character: parquet floors in parts, a sizable lounge with a log burner and sliding doors opening to the garden. Practical outbuildings include a workshop and a useful garage. There is planning approval to replace the current flat roof with a pitched roof, which gives clear scope to improve weather resilience and appearance and to add further value.
Buyers should be aware of several material points: the property currently has a 100% flat roof, an EPC rating of G and cavity walls without confirmed insulation—so energy and maintenance works are likely. The bungalow dates from the 1950s–60s and will suit someone willing to invest in upgrading heating, insulation and finishes rather than a move‑in‑perfect home.
This is a good opportunity for a family seeking large outdoor space near Frinton and Kirby, or for a buyer planning sympathetic refurbishment to capture future value. Nearby schools and easy access to Kirby’s mainline station and Frinton sea front add everyday convenience while the private setting keeps the plot unusually peaceful for the area.
3 bedroom detached bungalow for sale in Frinton Road, Kirby Cross, CO13 — £575,000 • 3 bed • 2 bath • 1339 ft²
2 bedroom semi-detached bungalow for sale in Chapel Lane, Kirby Cross, CO13 — £292,000 • 2 bed • 1 bath • 472 ft²
2 bedroom detached bungalow for sale in Frinton Road, Kirby Cross, CO13 — £325,000 • 2 bed • 1 bath • 626 ft²
3 bedroom detached bungalow for sale in Orchard Drive, Great Holland, Frinton-On-Sea, CO13 — £295,000 • 3 bed • 1 bath • 916 ft²
3 bedroom detached bungalow for sale in Halstead Road, Kirby Cross, CO13 — £325,000 • 3 bed • 1 bath • 840 ft²
3 bedroom detached house for sale in Sprit Sail Edith Road, Kirby Le Soken, Kirby Le Soken, CO13 — £495,000 • 3 bed • 3 bath • 892 ft²


























































































































































