Ideal starter home with low running costs and modern finishes.
Two double bedrooms, modern high-spec family bathroom
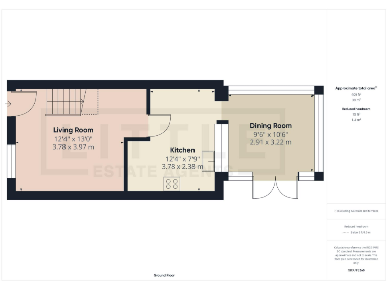
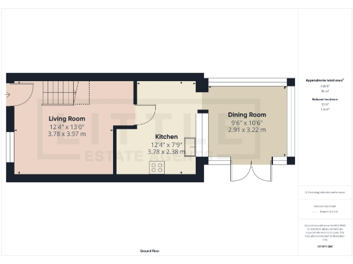
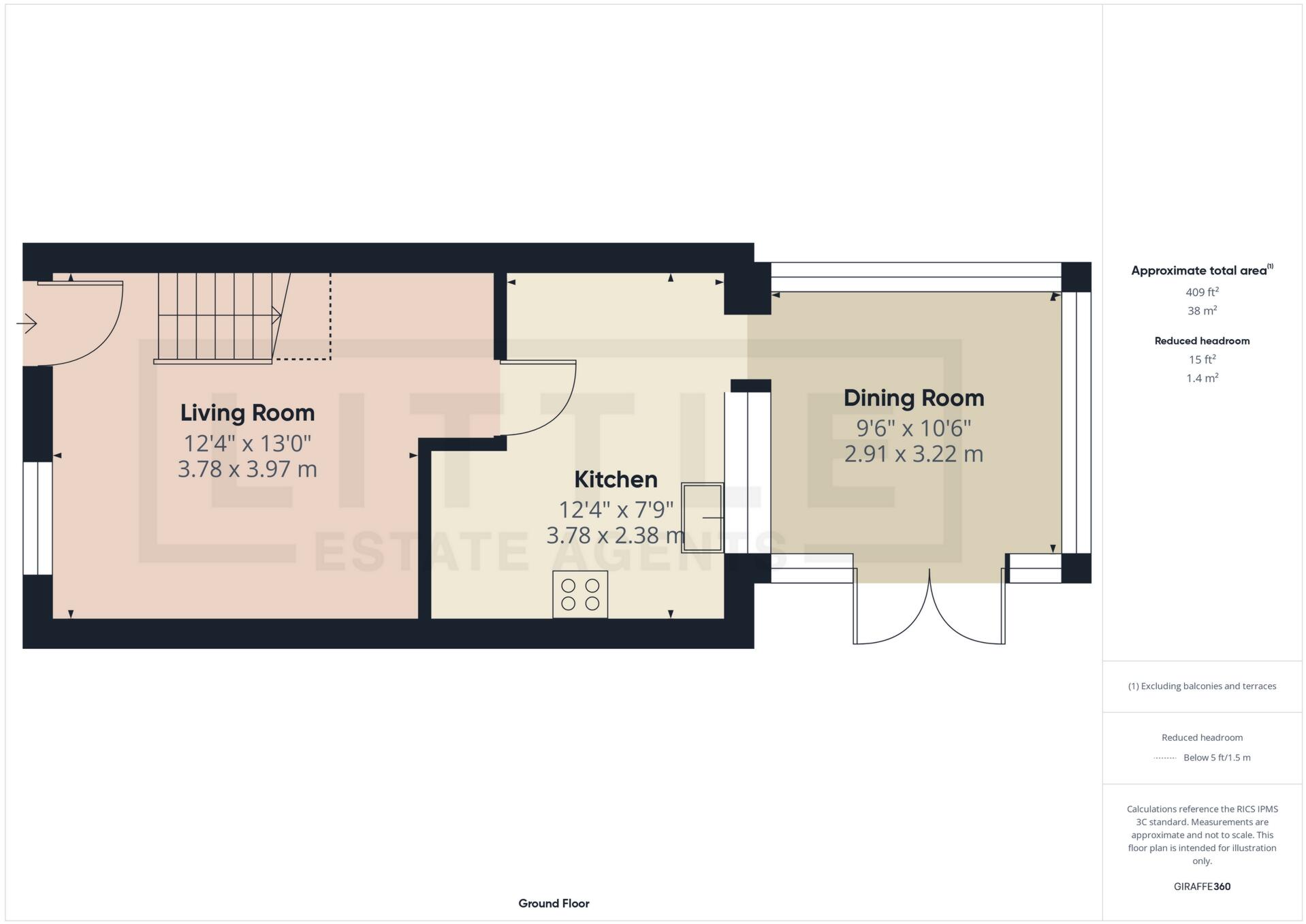
A neatly updated two-bedroom end townhouse arranged over two floors, presented with contemporary finishes and careful reconfiguration. The living room is bright with modern décor, while the open-plan kitchen flows into a conservatory that works well as dining or extra living space. Outside, a low-maintenance landscaped garden with patio and artificial grass gives a private, easy-care outdoor area and two off-street parking spaces sit to the front.
The property is newly renovated with double glazing, gas central heating and a high-spec family bathroom. With 609 sqft of accommodation it suits first-time buyers or a young couple seeking a move-in ready home with low running costs — council tax is inexpensive and broadband and mobile signals are strong. The leasehold has a very long term remaining (982 years), removing typical short-lease concerns.
Buyers should note the home sits in a broadly deprived neighbourhood within a modern development; local socioeconomic indicators are lower than average and area crime is classed as average. Several nearby schools are highly regarded, but a few local secondary options have lower Ofsted outcomes. The property’s compact overall size limits extension potential internally, though it presents straightforward renovation or redecoration opportunities if desired.
2 bedroom terraced house for sale in Deerfield Close, St Helens, WA9 1HJ, WA9 — £145,000 • 2 bed • 2 bath • 528 ft²
2 bedroom semi-detached house for sale in Litherland Crescent, St. Helens, WA11 — £190,000 • 2 bed • 1 bath • 684 ft²
2 bedroom terraced house for sale in Robins Lane, ST. HELENS, Merseyside, WA9 — £125,000 • 2 bed • 1 bath • 638 ft²
4 bedroom semi-detached house for sale in Deerfield Close, St Helens, WA9 — £220,000 • 4 bed • 2 bath • 1398 ft²
2 bedroom terraced house for sale in Yarn Close, St. Helens, WA9 — £135,000 • 2 bed • 2 bath • 624 ft²
3 bedroom end of terrace house for sale in City Road, St. Helens, WA10 — £220,000 • 3 bed • 3 bath • 819 ft²






























































































