Affordable three-bedroom maisonette near Halliford station with new boiler and garden..
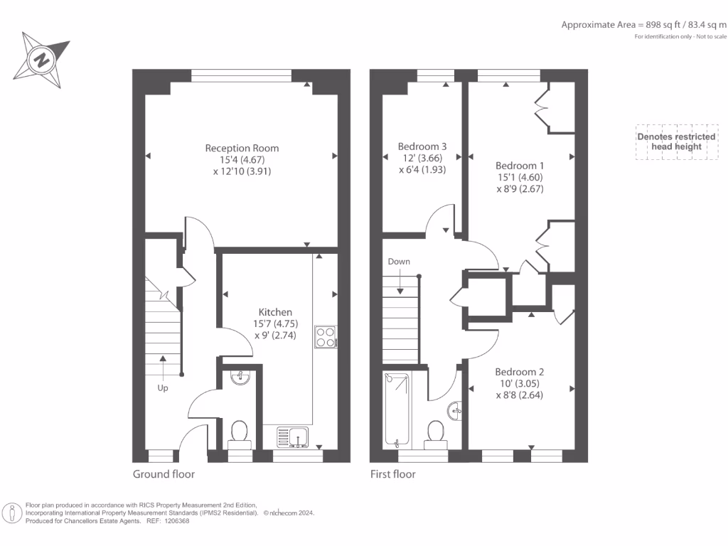
Three-bedroom split-level maisonette, approx 898 sq ft
This three-bedroom split-level maisonette offers an affordable entry into Sunbury-on-Thames with sensible running costs and recent mechanical updates. At around 898 sq ft, the layout provides a separate living room, fitted kitchen-diner, downstairs WC and a private front garden — practical for young families or first-time buyers.
A new boiler was installed in 2024 and double glazing upgraded after 2002, which reduces immediate maintenance and heating costs. The sale includes a commitment to extend the lease as part of the transaction; current remaining term is 82 years. A garage is available in a nearby block but is currently rented by the owner so future parking may be subject to continued rental or transfer arrangements.
The building dates from the late 1960s/early 1970s and is mid-terrace with timber-frame elements and partial insulation; cosmetic updating and some improvement work should be expected. There is only one bathroom for three bedrooms, so families should weigh that practical limitation. Broadband and mobile signal are strong, and local primary and secondary schools (including a highly rated Catholic college) are within easy reach.
Be candid about the location: the property sits in an area with higher crime statistics and local deprivation indicators, which affects resale and neighbourhood feel. For buyers prioritising value and convenience to Halliford train station, this maisonette presents clear potential once cosmetic and lifestyle considerations are addressed.
3 bedroom maisonette for sale in Sunbury-on-Thames, Surrey, TW16 — £300,000 • 3 bed • 1 bath • 990 ft²
2 bedroom maisonette for sale in Castle Close, Sunbury On Thames, TW16 — £300,000 • 2 bed • 1 bath • 768 ft²
2 bedroom maisonette for sale in Castle Close, Sunbury-on-Thames, TW16 — £286,500 • 2 bed • 1 bath • 705 ft²
2 bedroom maisonette for sale in Cedar Way, Sunbury-On-Thames, TW16 — £325,000 • 2 bed • 1 bath • 625 ft²
2 bedroom flat for sale in Castle Close, Sunbury-on-Thames, TW16 — £350,000 • 2 bed • 1 bath • 630 ft²
3 bedroom maisonette for sale in Town Lane, Stanwell, TW19 — £325,000 • 3 bed • 1 bath • 776 ft²










































