Single-level living on a generous plot in quiet Chalfont St. Giles cul-de-sac.
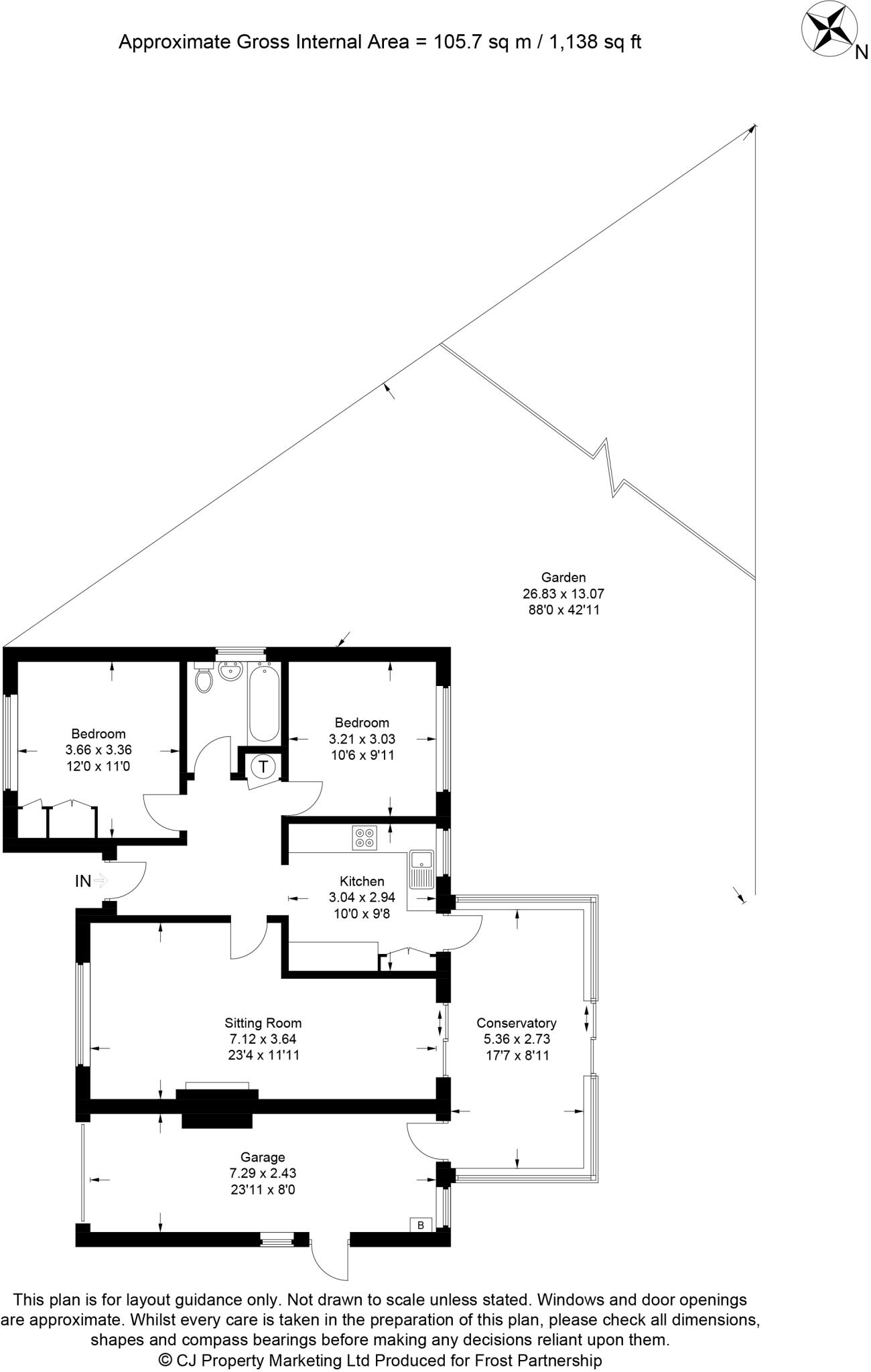
Detached two-bedroom bungalow with conservatory and garage
This detached two-bedroom bungalow sits on a large, irregular plot in a quiet Chalfont St. Giles cul-de-sac, offering single-level living and a substantial west-facing rear garden. The layout includes a sitting room, conservatory, kitchen, two double bedrooms, bathroom and an attached single garage with driveway parking — well suited to downsizers or small families seeking practical, ground-floor accommodation.
The property is chain-free and benefits from lots of natural light, excellent mobile signal and fast broadband. The house appears lived-in and retains mid‑century features; ceiling heights are standard and room sizes are average for its 1,138 sq ft gross internal area. Local schools rate well and the village location provides easy access to nearby amenities and low-crime surroundings.
Important considerations: the kitchen dates from the 1980s and will need modernisation; the overall condition is lived-in and cosmetic updating is likely throughout. There is potential to reconfigure or extend subject to the usual planning consents — interested buyers should verify planning history and measurements. No flood risk is recorded and the tenure is freehold.
Viewers will find a practical, well-proportioned bungalow on a generous plot with clear scope to personalise and increase value. The accommodation and plot offer immediate comfortable single-storey living with straightforward renovation potential for long-term benefit.
4 bedroom bungalow for sale in Sycamore Close, Chalfont St. Giles, Buckinghamshire, HP8 — £799,950 • 4 bed • 2 bath • 1514 ft²
2 bedroom bungalow for sale in Deanway, Chalfont St Giles, HP8 — £500,000 • 2 bed • 1 bath • 883 ft²
4 bedroom bungalow for sale in Deanway, Chalfont St. Giles, Buckinghamshire, HP8 — £750,000 • 4 bed • 2 bath • 1020 ft²
3 bedroom bungalow for sale in Palliser Road, Chalfont St. Giles, Buckinghamshire, HP8 — £595,000 • 3 bed • 1 bath • 954 ft²
4 bedroom house for sale in Stylecroft Road, Chalfont St. Giles, HP8 — £849,999 • 4 bed • 2 bath • 1683 ft²
2 bedroom detached bungalow for sale in Russell Close, Little Chalfont, HP6 — £675,000 • 2 bed • 2 bath • 850 ft²






















































