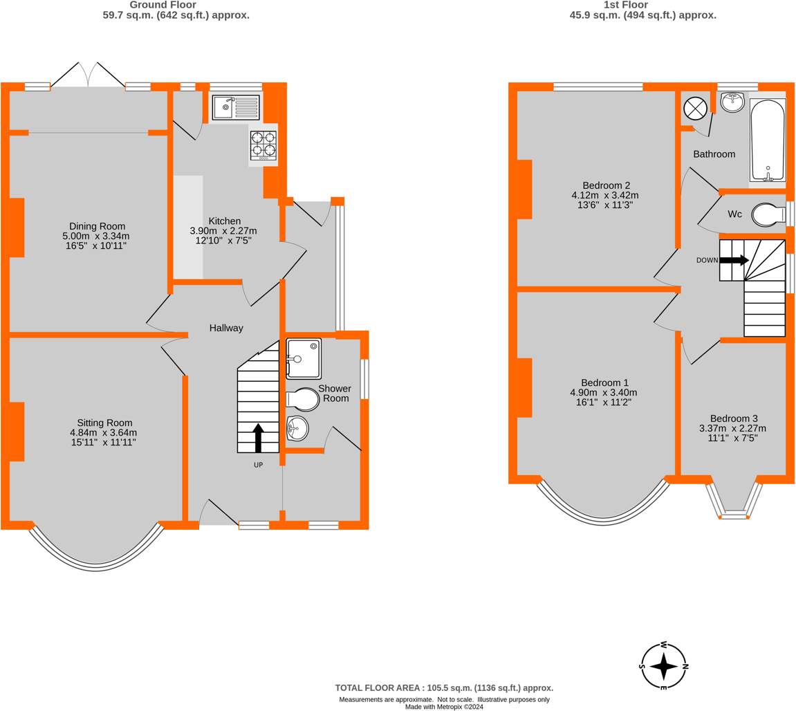
**Standout Features:**
- Charming three-bedroom 1930s semi-detached house
- Spacious 60' rear garden with garage
- Central heating with a new boiler and double glazing
- Generously sized living room (15'11" x 11'11")
- Dining room with double doors to the garden
- Original bathroom fittings with delightful tiles
- Chain free with potential for modern open plan renovation
**Summary:**
Discover a charming three-bedroom semi-detached house built in the 1930s, ideally located just steps from Beckenham High Street and its vibrant array of amenities. The spacious living room, measuring 15'11" x 11'11", welcomes in natural light, while the adjoining dining room with double doors creates a seamless flow to the expansive 60' rear garden—perfect for family gatherings or outdoor relaxation. This residence is decorated throughout, featuring new flooring and central heating with a brand-new boiler, ensuring comfort for modern living.
The home holds onto its character with an original bathroom and tiling while presenting exciting renovation potential for the new owner, such as the possibility of creating an open plan kitchen/family room, subject to planning consents. With a garage and the conveniences of nearby transport links, this property is tailored for families seeking comfort, security, and future flexibility. Don’t miss out on this exclusive opportunity—schedule a viewing today and envision your family's next chapter in this delightful home!
3 bedroom semi-detached house for sale in Village Way, Beckenham, BR3 — £800,000 • 3 bed • 1 bath • 1281 ft²
3 bedroom semi-detached house for sale in Village Way, Beckenham, BR3 — £735,000 • 3 bed • 1 bath • 1060 ft²
3 bedroom house for sale in Church Avenue, Beckenham, BR3 — £800,000 • 3 bed • 1 bath • 1069 ft²
3 bedroom terraced house for sale in Rectory Road, Beckenham, BR3 — £750,000 • 3 bed • 1 bath • 1102 ft²
4 bedroom terraced house for sale in Lea Road, Beckenham, BR3 — £750,000 • 4 bed • 2 bath • 1192 ft²
3 bedroom terraced house for sale in Glendale Mews, Beckenham, Kent, BR3 — £599,999 • 3 bed • 1 bath • 836 ft²


























































